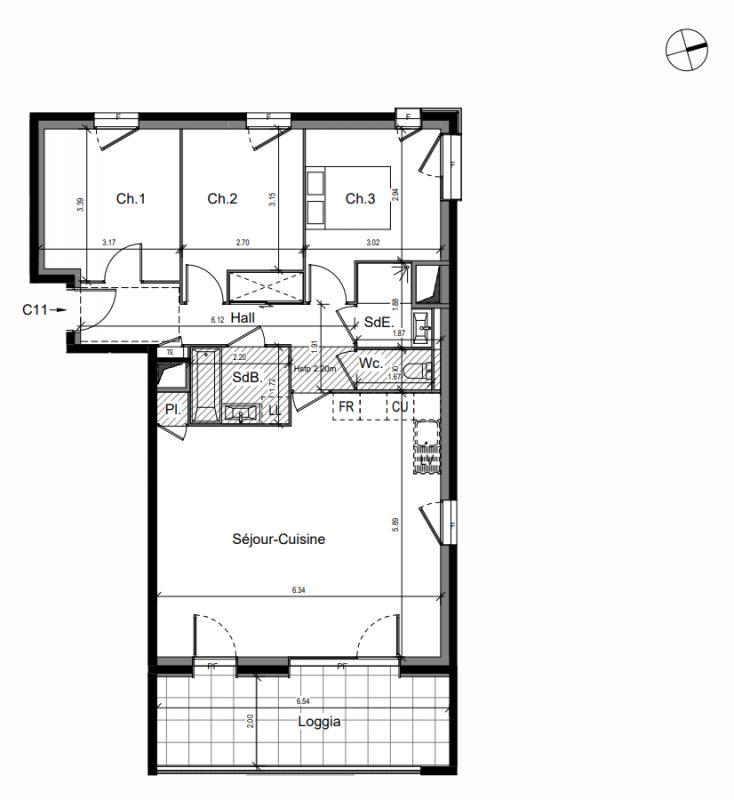
Appt. n°B1-C11

Programme "OSMOSE"

Ce lot n’est plus disponible chez VIANOVA ou est vendu.

Vous pouvez revenir dans 24h pour vérifier le stock à jour ou contacter un conseiller Vianova pour vérifier le stock en direct.
Vous pouvez également continuer votre recherche sur notre site « ici ».

Prix
570 000€
Type
Appt. au 1er
Pièces
-
Surface
105.65 m²
Exposition
-
Ville
Saint-Genis-Pouilly (01630)
Livraison
1er trimestre 2027
Informations
01 81 80 39 10

Présentation du programme "OSMOSE"

Autres logements - du programme "OSMOSE"

Disponibilité Prix Genre Pièces Surface Étage
Voir
Disponible
584 000€ Appt. - 95.05m2 1er
Voir
Disponible
594 000€ Appt. - 94.95m2 1er
Voir
Disponible
462 000€ Appt. - 61.3m2 0-RDC
DO NOT CLICK