Prix
249 500€  (TVA 20%)
219 352€  (TVA 5.5%)
Type
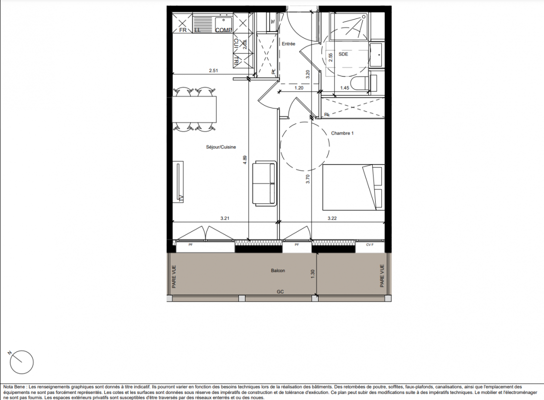
Appt. au 1er
Pièces
T2
Surface
43 m²
Exposition
-
Ville
Annemasse (74100)
Livraison
1er trimestre 2028
Informations
01 81 80 39 10

Présentation du programme "R.E.V.E"

[NOUVEAU DISPOSITIF JEANBRUN : réduisez vos impôts et augmentez votre rentabilité !]

R.E.V.E : nouvelle Résidence Engagée et VErtueuse à ANNEMASSE (74), dans la ZAC écoquartier Château Rouge, à 10km de Genève et au pied du futur tram. Appartements neufs du 2 au 5 pièces, prix réduits grâce à la TVA réduite ! Cave et surface extérieure (balcon, terrasse ou jardin) pour tous les logements, et stationnements en sous-sol. Résidence vertueuse aux nombreux labels environnement. Prestations soignées, chauffage au sol, double orientation. [CERTAINS APPARTEMENTS EN BRS : PROFITEZ DE PRIX REDUITS 20% À 40% EN DESSOUS DU MARCHÉ].

Autres logements T2 du programme "R.E.V.E"

Disponibilité Prix Genre Pièces Surface Étage
Voir
Disponible
248 500€ Appt. T2 42.99m2 1er
Voir
Disponible
253 000€ Appt. T2 42.99m2 3ème
Voir
Disponible
253 000€ Appt. T2 43m2 3ème
Voir
Disponible
249 500€ Appt. T2 43m2 1er
Voir
Disponible
250 000€ Appt. T2 43m2 2ème
Voir
Disponible
253 000€ Appt. T2 43m2 3ème
DO NOT CLICK