Prix
363 200€
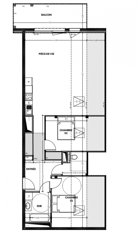
Type
Appt. au 3ème
Pièces
T3
Surface
74.2 m²
Exposition
-
Ville
Saint-Paul-en-Chablais (74500)
Livraison
3ème trimestre 2027
Informations
01 81 80 39 10

Présentation du programme "Bellevue"

[NOUVEAU DISPOSITIF JEANBRUN : réduisez vos impôts et augmentez votre rentabilité !]

La résidence Bellevue à Saint-Paul-en-Chablais, composée d'appartements du studio au 5 pièces, dont un corps de ferme conservé et réhabilité, est idéalement située dans un cadre de vie idyllique et propose des vues dégagées sur les montagnes et le lac Léman. Une adresse à l'esprit campagne à proximité de la Suisse, des stations de ski et du lac Léman. Prestations soignées et espace extérieur (balcon, terrasse ou jardin privatif) pour tous les appartements. Terrain de pétanque, placette commune, verger collectif et jardin potager partagé favorisant la convivialité entre voisins.

Autres logements T3 du programme "Bellevue"

Disponibilité Prix Genre Pièces Surface Étage
Voir
Optionné
320 000€ Appt. T3 64.6m2 1er
Voir
Disponible
313 200€ Appt. T3 69.4m2 1er
DO NOT CLICK