Prix
233 175€  (TVA 20%)
205 000€  (TVA 5.5%)
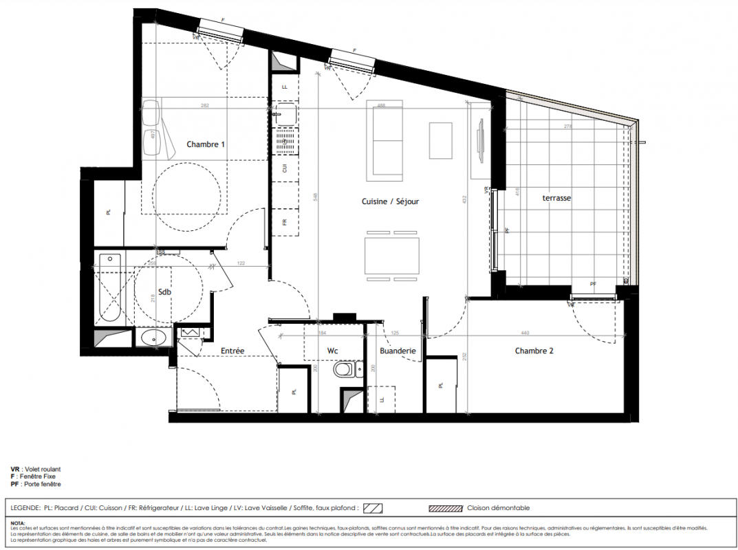
Type
Appt. au 4ème
Pièces
T3
Surface
68 m²
Exposition
-
Ville
Roanne (42300)
Livraison
4ème trimestre 2025
Informations
01 81 80 39 10

Présentation du programme "EMBELLIE"

Autres logements T3 du programme "EMBELLIE"

Disponibilité Prix Genre Pièces Surface Étage
Voir
Disponible
237 725€ Appt. T3 68m2 5ème
Voir
Disponible
214 976€ Appt. T3 68.5m2 2ème
Voir
Disponible
221 801€ Appt. T3 68.5m2 3ème
Voir
Disponible
209 000€ Appt. T3 71.6m2 3ème
Voir
Disponible
205 000€ Appt. T3 71.6m2 2ème
Voir
Disponible
219 000€ Appt. T3 71.7m2 3ème
DO NOT CLICK