Prix
123 000€
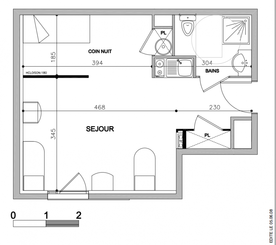
Type
Appt. au 3ème
Pièces
Studio
Surface
32.92 m²
Exposition
Est
Ville
Lyon 3ème (69003)
Livraison
1er trimestre 2025
Informations
01 81 80 39 10

Présentation du programme "Résidence Étudiante Parc Harmonie - Studilodge"

Descriptif de la résidenceLa résidence étudiante Parc Harmonie est idéalement située dans l'un des plus grands quartiers d'affaires et d'études de Lyon et de France. Cette résidence étudiante vous offre un cadre de vie exceptionnel, près d'un des plus grands centres commerciaux de Lyon et des établissements étudiants les plus connus. La résidence étudiante est proche des universités Lyon I et Lyon III, ainsi que des pôles hospitalo-universitaires qui contribuent au prestige de Lyon au niveau international. La résidence propose des locations étudiantes allant du studio au T2 en passant par le T1 bis, pouvant bénéficier des aides ALS (Allocation de logement sociale).Descriptif gestionnaireLE CONCEPT STUDILODGE Pour étudier en toute sérénité, un étudiant a besoin d’être bien logé. C’est pourquoi Studilodge a été créé : pour offrir aux futurs diplômés des résidences services de haute qualité, à la fois confortables, fonctionnelles et sécurisées. Située à proximité des Grandes Écoles et des Universités, que ce soit à Lyon, Marseille ou Bourg-en-Bresse, chacune de nos résidences étudiantes propose des logements entièrement meublés et équipés, ainsi que de nombreux services.Arguments de vente• Lyon, pôle universitaire européen (100 000 étudiants) • Résidences services proche des facultés (Université Lyon 3...) • Projet de réalisation d'une école professionnelle face au programme en 2009 • Lyon 3e, quartier animé à deux pas de Montplaisir • Métro à 200 m, tramway à 400 mInformations du bail commercialArticle 5 - CONDITIONS LE PRENEUR 5.5. Effectuera pendant le cours du ball les réparations locatives visées au décret N" 87-712 du 26 août 1987, supportera et acquittera l'ensemble des charges de copropriété dites " récupérables », ainsi que les impôts et taxes dont les locataires sont ordinairement tenus et, plus généralement toutes dépenses nécessaires au bon fonctionnement des Immeubles habituellement mises à la charge des locataires. LE BAILLEUR conservera à sa charge les impôts, charges et taxes mis à la charge des propriétaires, ainsi que les charges de copropriété non récupérables et les dépenses de remise en état des locaux dont la vétusté serait due à une usure normale et notamment le réfrigérateur, les convecteurs, le chauffe-eau, les meubles (...). LE PRENEUR 5.6. Acquittera et supportera les charges d'exploitation comprenant notamment les abonnements et la fourniture de l'électricité et de l'eau, l'abonnement et les communications téléphoniques,...

Autres logements Studio du programme "Résidence Étudiante Parc Harmonie - Studilodge"

Disponibilité Prix Genre Pièces Surface Étage
Voir
Disponible
70 300€ Appt. Studio 20.6m2 4ème
DO NOT CLICK