Prix
285 199€
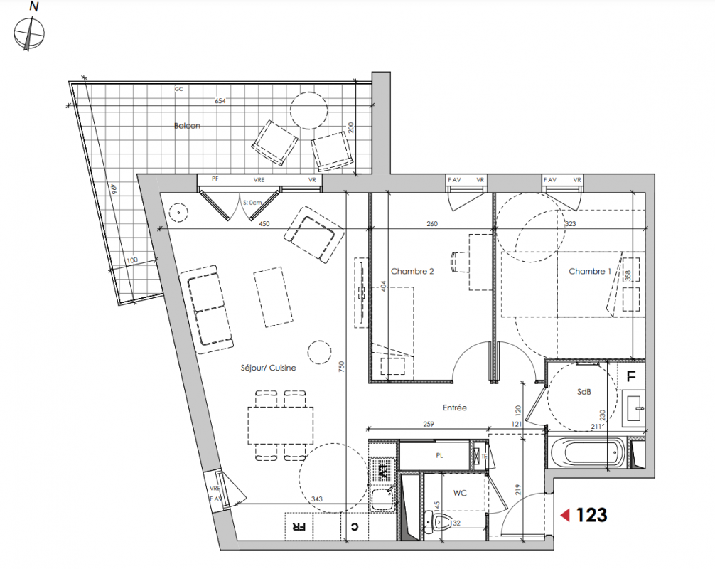
Type
Appt. au 2ème
Pièces
T3
Surface
65 m²
Exposition
Nord-Ouest
Ville
Challes-les-Eaux (73190)
Livraison
4ème trimestre 2026
Informations
01 81 80 39 10

Présentation du programme "DELTA"

découvrez ce nouveau lieu de vie à l'architecture contemporaine. Située au Sud de la commune de Challes-les-Eaux, à proximité des commodités et des commerces, la résidence DELTA propose un cadre de vie agréable et la quiétude d'un cocon de vie résidentiel. Composée d'appartements neufs du 2 au 5 pièces, DELTA offre des espaces de vie intérieur confortables se prolongeant sur des balcons, terrasses ou jardins privés.

Autres logements T3 du programme "DELTA"

Disponibilité Prix Genre Pièces Surface Étage
Voir
Disponible
299 999€ Appt. T3 64m2 3ème
Voir
Disponible
307 999€ Appt. T3 64m2 2ème
Voir
Disponible
286 999€ Appt. T3 64m2 1er
DO NOT CLICK