413 120€
Appt. au 0-RDC
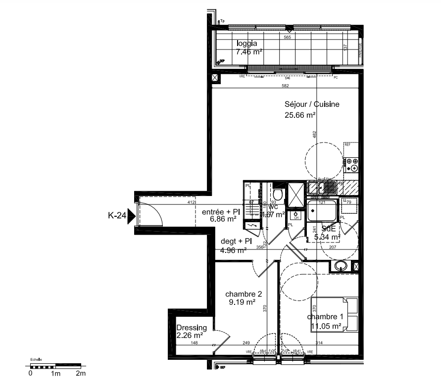
T3
66.99 m²
Ouest
Dinard (35800)
1er trimestre 2026
01 81 80 39 10
Présentation du programme "ART DECO - Meublé"
Ce nouveau quartier de grand standing (site de l'ancienne gare) permet de tout faire à pied et de rejoindre sans contraintes les halles, la plage, le marché, les commerces.
Les logements, à la géométrie travaillée, constituent un rappel des grandes villas, témoins incontournables de l'architecture balnéaire dinardaise.
Volumétries, articulations en plans et en façades, grandes baies vitrées, bow-windows, frontons ou corniches, balcons et loggias sont autant d'éléments à souligner.
L'ensemble des stationnements est situé en sous-sol avec accès sécurisé.
Le programme propose des prestations de qualité :
- Carrelage grand format dans les pièces de vie
- Parquet contrecollé dans les chambres
- Placards équipés
- Salles de bains et salles d'eau : meuble-vasque avec panneau miroir et applique, sèche-serviettes et pare-douche
- Volets roulants électriques sur toutes les fenêtres
- Terrasses, balcons ou loggias
- Halls d'entrée à double contrôle : clés électroniques et vidéophone
- Ascenseur desservant tous les niveaux
- Porte palière avec serrure de sûreté 3 points
Autres logements T3 du programme "ART DECO - Meublé"
| Disponibilité | Prix | No | Genre | Pièces | Surface | Étage | Disponibilité | Prix | ||
|---|---|---|---|---|---|---|---|---|---|---|
| Voir | Disponible | 407 620€ | K14 | Appt. | T3 | 66.99m2 | 0-RDC | Disponible | 407 620€ | Voir |
| Voir | Disponible | 414 420€ | K34 | Appt. | T3 | 66.99m2 | 0-RDC | Disponible | 414 420€ | Voir |
| Voir | Disponible | 384 620€ | L11 | Appt. | T3 | 62.97m2 | 0-RDC | Disponible | 384 620€ | Voir |
| Voir | Disponible | 383 820€ | L13 | Appt. | T3 | 63.75m2 | 0-RDC | Disponible | 383 820€ | Voir |
| Voir | Disponible | 409 420€ | L14 | Appt. | T3 | 63.58m2 | 0-RDC | Disponible | 409 420€ | Voir |
| Voir | Disponible | 402 920€ | L21 | Appt. | T3 | 62.97m2 | 0-RDC | Disponible | 402 920€ | Voir |
| Voir | Disponible | 387 120€ | L23 | Appt. | T3 | 63.75m2 | 0-RDC | Disponible | 387 120€ | Voir |
| Voir | Disponible | 397 720€ | L24 | Appt. | T3 | 63.58m2 | 0-RDC | Disponible | 397 720€ | Voir |
| Voir | Disponible | 391 120€ | L31 | Appt. | T3 | 62.97m2 | 0-RDC | Disponible | 391 120€ | Voir |
| Voir | Disponible | 395 520€ | L41 | Appt. | T3 | 62.97m2 | 0-RDC | Disponible | 395 520€ | Voir |