Ce lot n’est plus disponible chez VIANOVA ou est vendu.

Vous pouvez revenir dans 24h pour vérifier le stock à jour ou contacter un conseiller Vianova pour vérifier le stock en direct.
Vous pouvez également continuer votre recherche sur notre site « ici ».

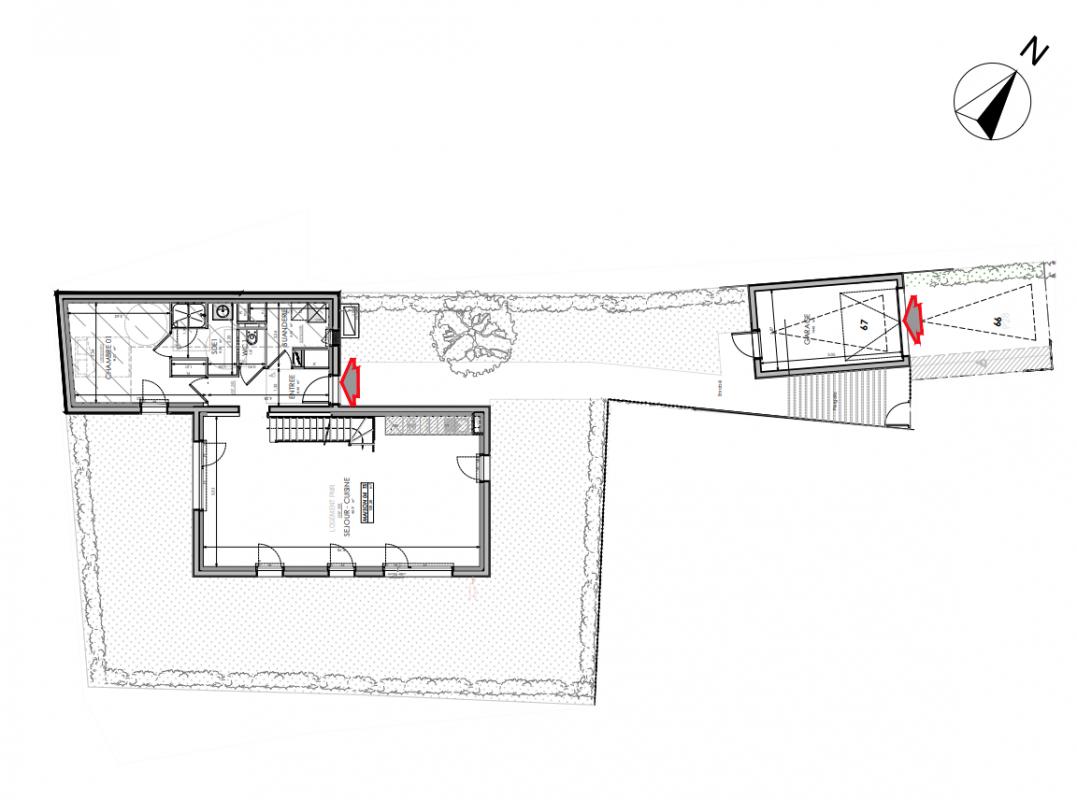
Prix
580 500€
Type
Maison au 0-RDC
Pièces
T5
Surface
128.26 m²
Exposition
-
Ville
Saint-Malo (35400)
Livraison
1er trimestre 2028
Informations
01 81 80 39 10

Présentation du programme "TY LODGE - Maison"

Autres logements T5 du programme "TY LODGE - Maison"

Pas de logements disponibles
DO NOT CLICK