182 500€
Appt. au 2ème
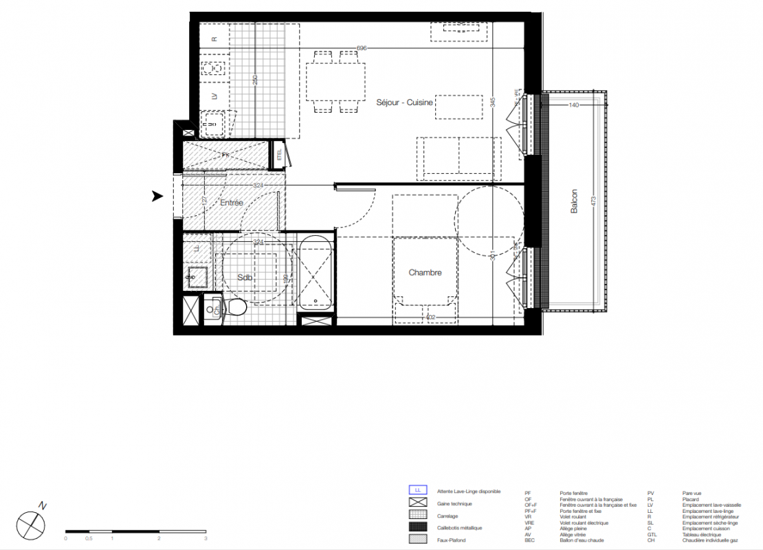
T2
45 m²
-
Vitré (35500)
4ème trimestre 2026
01 81 80 39 10
Présentation du programme "Tierni"
DEVENEZ PROPRIÉTAIRE EN BRETAGNE
VOTRE APPARTEMENT NEUF À VITRÉ
Vitré, la dynamique reconnue d'une "Ville d'art et D'histoire"
Aux portes de la Bretagne, à la rencontre de la Normandie, du Maine et de l’Anjou, Vitré jouit d’une atmosphère unique. Le centre-ville avec ses rues pavées, ses maisons à colombages et ses hôtels particuliers, regorge de boutiques de caractère et de restaurants
Entourée d’une nature douce et vallonnée, la treizième ville de Bretagne en nombre d’habitants offre des bulles de nature où il fait bon se relaxer
Vitré bénéficie d’un positionnement stratégique à 2 heures de TGV de Paris et 45 minutes* de route de l’aéroport de Rennes. À la clé, l’un des bassins d’emplois les plus dynamiques de France marqué par un taux de chômage de 5 %, le plus faible de Bretagne et bien inférieur à la moyenne nationale*
*Google map
*mairie-vitre.com
DÉCOUVREZ LA RÉSIDENCE Tierni
Au coeur de Vitré, l'environnement respire le calme et la sérénité. Vous accédez rapidement à une grande variété de commerces mais aussi à de multiples équipements sportifs et culturels dont la piscine du Bocage, le stade municipal ou encore le cinéma Aurore. Pour les familles, les écoles primaires Jean Guéhenno et La Hodeyère sont à 1 km à peine, le collège Gérard de Nerval et le lycée Bertrand d’Argentier à 2 km*. Pour vraiment déconnecter, rien de mieux que de se mettre au vert. Alors rendez-vous au Jardin du Parc. De quoi rendre votre quotidien plus facile et agréable jour après jour.
Située 19 rue de la Fleuriais à Vitré, la résidence Tierni offre 38 logements du 2 au 4 pièces, confortables et bien pensés. Des accès piétons et vélos indépendants rendent la circulation plus sûre et agréable au quotidien.
Bienvenue chez vous !
Des appartements du 2 au 4 pièces
Vianova a conçu votre appartement pour vous apporter un bien-être intérieur vraiment à la hauteur. Chaque équipement, chaque matériau a été sélectionné avec soin pour rendre votre quotidien exceptionnel. Séjour, cuisine, salle de bains, chambres à coucher… Partout, des espaces judicieusement organisés, des volumes généreux et baignés par la lumière.
Promoteur national depuis plus de 25 ans, Vianova vous propose, en tant qu'expert de la promotion immobilière, la résidence Tierni située Vitré. N'hésitez pas à nous contacter pour votre projet de résidence principale ou d'investissement locatif en VEFA en Bretagne.
Autres logements T2 du programme "Tierni"
| Disponibilité | Prix | No | Genre | Pièces | Surface | Étage | Disponibilité | Prix | ||
|---|---|---|---|---|---|---|---|---|---|---|
| Voir | Disponible | 185 500€ | B001 | Appt. | T2 | 46.5m2 | 0-RDC | Disponible | 185 500€ | Voir |
| Voir | Disponible | 185 500€ | B005 | Appt. | T2 | 45.4m2 | 0-RDC | Disponible | 185 500€ | Voir |
| Voir | Disponible | 186 500€ | B101 | Appt. | T2 | 46.5m2 | 1er | Disponible | 186 500€ | Voir |
| Voir | Disponible | 180 500€ | B103 | Appt. | T2 | 45m2 | 1er | Disponible | 180 500€ | Voir |
| Voir | Disponible | 186 500€ | B106 | Appt. | T2 | 45.4m2 | 1er | Disponible | 186 500€ | Voir |
| Voir | Disponible | 183 500€ | C001 | Appt. | T2 | 45.4m2 | 0-RDC | Disponible | 183 500€ | Voir |
| Voir | Disponible | 187 500€ | C004 | Appt. | T2 | 45m2 | 0-RDC | Disponible | 187 500€ | Voir |
| Voir | Disponible | 183 500€ | C005 | Appt. | T2 | 46.5m2 | 0-RDC | Disponible | 183 500€ | Voir |
| Voir | Disponible | 184 500€ | C101 | Appt. | T2 | 45.4m2 | 1er | Disponible | 184 500€ | Voir |
| Voir | Disponible | 186 500€ | C104 | Appt. | T2 | 45m2 | 1er | Disponible | 186 500€ | Voir |
| Voir | Disponible | 186 500€ | C201 | Appt. | T2 | 45.4m2 | 2ème | Disponible | 186 500€ | Voir |
| Voir | Disponible | 186 500€ | C206 | Appt. | T2 | 46.5m2 | 2ème | Disponible | 186 500€ | Voir |