Prix
303 000€
Type
Appt. au 5ème
Pièces
T4
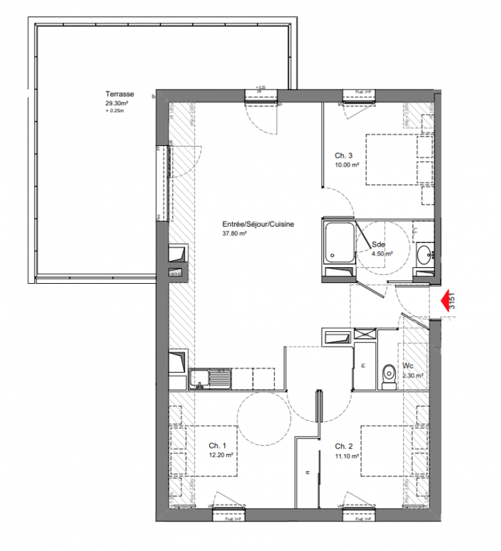
Surface
77 m²
Exposition
Nord
Ville
Tours (37000)
Livraison
2ème trimestre 2026
Informations
01 81 80 39 10

Présentation du programme "DOMAINE DE SUÈDE"

A Tours, votre appart neuf à partir de 502,99 euros par mois (1) pendant les 3 premières années (le montant affiché tient compte de l'offre commerciale) + FRAIS DE NOTAIRE OFFERTS (2) jusqu'au 31 mars 2026.TRAVAUX EN COURS - EMMENAGEZ DEBUT 2026
DERNIERES OPPORTUNITES D'APPARTEMENT 4 PIECES.

Au nord de Tours, découvrez un nouveau quartier : DOMAINE DE SUEDE. Cette nouvelle adresse est située proche des commerces, des écoles, des lieux de loisirs et à seulement 10 minutes du centre-ville.

Un nouveau quartier, placé sous le signe de la nature en ville, allie en toute harmonie de petits ilots résidentiels aux hauteurs maitrisées. Domaine de suède propose encore quelques appartements de 4 pièces avec jardin, balcon ou terrasse et où chacun dispose d'un stationnement.

Autres logements T4 du programme "DOMAINE DE SUÈDE"

Pas de logements disponibles
DO NOT CLICK