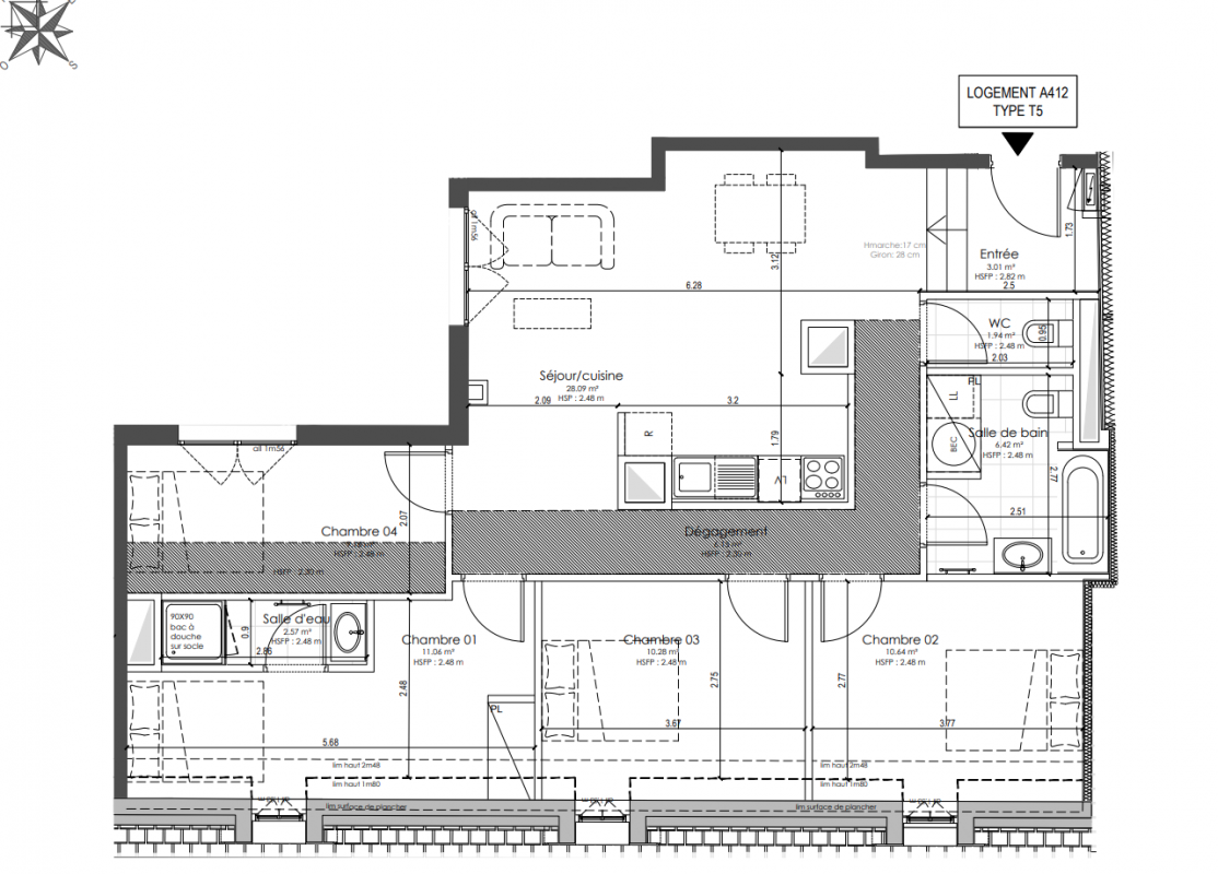
Prix
575 800€
Type
Appt. au 4ème
Pièces
T5
Surface
89.33 m²
Exposition
Nord-Ouest
Ville
Troyes (10000)
Livraison
3ème trimestre 2026
Informations
01 81 80 39 10

Présentation du programme "Les Magasins Reunis"

Ce programme comprend 74 duplex et appartements neufs. Ils sont de type T1, T1 bis, T2, T3, T3 bis, T4, T4 bis et T5 et peuvent faire office d'investissement locatif. Leur livraison est annoncée à la fin de l'année 2026 et ils sont éligibles au dispositif Malraux.

Autres logements T5 du programme "Les Magasins Reunis"

Disponibilité Prix Genre Pièces Surface Étage
Voir
Disponible
568 300€ Appt. T5 92.34m2 2ème
DO NOT CLICK