296 758€ (TVA 20%)
260 900€ (TVA 5.5%)
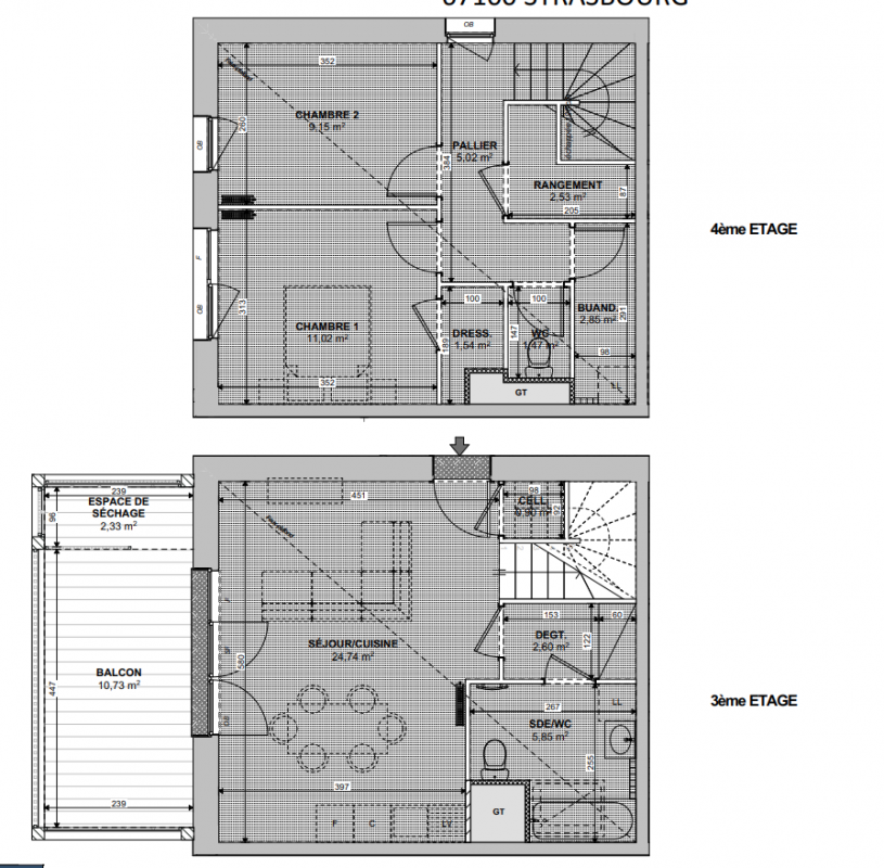
Appt. au 3ème
-
70.17 m²
-
Strasbourg (67000)
1er trimestre 2027
01 81 80 39 10
Présentation du programme "LE WOOD"
CUISINE + FRAIS DE NOTAIRE OFFERTS et REMISE DE 5 000 EUROS PAR PIECE * pour les 5 prochains réservataires
Découvrez cette nouvelle résidence située dans le quartier du Neuhof en plein renouveau qui est engagé dans une dynamique de renouvellement urbain depuis plusieurs années. Le projet comportera 3 petits bâtiments et agrémenté de deux commerces. Il se constitue d'appartements lumineux, traversants et bénéficiant de grands et larges balcons. Des panneaux solaires alimenteront les besoins en électricité de la copropriété ainsi que de la pompe à chaleur. Ces atouts amélioreront votre quotidien de façon permanente et feront en baisser vos charges. Des garages en sous-sol ainsi que des locaux vélos au rez-de-chaussée sauront garantir une sérénité pour vos stationnements. La résidence est proche de toutes les commodités nécessaires. Pour des déplacements en transports en commun, l'arrêt de tram Saint-Christophe (Ligne C) est à proximité immédiate de la résidence. Pour des activités culturelles et sportives, vous trouverez des établissements pour vous divertir comme la piscine de la Kibitzenau et le stade de la Meinau. Afin d'en savoir plus, contactez-nous dès maintenant au 0379331010 ! Votre conseiller commercial saura vous conforter et vous guider dans votre choix. PTZ zone A, RE 2020. Prix hors parking avec remise incluse.
* Offres promotionnelles valables du 01/03/2026 au 31/03/2026 inclus, dans la limite des stocks disponibles et réservées aux 5 prochains réservataires, sous réserve de la signature d'un contrat de réservation d'un logement SPIRIT. Remise d'un montant de 5 000 € par pièce principale (pièce hors cuisine et hors salle de bains), soit 10 000 € pour un T2, 15 000€ pour un T3, 20 000 € pour un T4 et 25 000 € pour un T5. Ces remises sont calculées sur la base du prix de vente TTC figurant sur la grille de prix selon le taux de TVA en vigueur et consenties dans le cadre d'un avenant au contrat de réservation. Les frais de notaire sont pris en charge par la SCI, hors frais d'hypothèque, de garantie bancaire et de règlement de copropriété.
Autres logements - du programme "LE WOOD"
| Disponibilité | Prix | No | Genre | Pièces | Surface | Étage | Disponibilité | Prix | ||
|---|---|---|---|---|---|---|---|---|---|---|
| Voir | Disponible | 313 592€ | A16 | Appt. | - | 73.09m2 | 1er | Disponible | 313 592€ | Voir |
| Voir | Disponible | 278 673€ | A26 | Appt. | - | 62.8m2 | 2ème | Disponible | 278 673€ | Voir |
| Voir | Optionné | 204 171€ | A27 | Appt. | - | 43.08m2 | 2ème | Optionné Mais pas encore vendu 😉 | 204 171€ | Voir |
| Voir | Disponible | 298 009€ | A33 | Appt. | - | 72.04m2 | 3ème | Disponible | 298 009€ | Voir |
| Voir | Disponible | 288 910€ | A41 | Appt. | - | 66.79m2 | 4ème | Disponible | 288 910€ | Voir |
| Voir | Disponible | 294 825€ | A51 | Appt. | - | 66.56m2 | 5ème | Disponible | 294 825€ | Voir |
| Voir | Disponible | 311 545€ | B11 | Appt. | - | 79.2m2 | 1er | Disponible | 311 545€ | Voir |
| Voir | Disponible | 389 005€ | B23 | Appt. | - | 98.13m2 | 2ème | Disponible | 389 005€ | Voir |
| Voir | Disponible | 301 649€ | B31 | Appt. | - | 73.24m2 | 3ème | Disponible | 301 649€ | Voir |
| Voir | Disponible | 334 863€ | B33 | Appt. | - | 80.51m2 | 3ème | Disponible | 334 863€ | Voir |
| Voir | Disponible | 286 521€ | B34 | Appt. | - | 65.45m2 | 3ème | Disponible | 286 521€ | Voir |
| Voir | Disponible | 277 081€ | C12 | Appt. | - | 59.47m2 | 1er | Disponible | 277 081€ | Voir |
| Voir | Disponible | 281 517€ | C22 | Appt. | - | 59.47m2 | 2ème | Disponible | 281 517€ | Voir |
| Voir | Optionné | 213 725€ | C23 | Appt. | - | 49.74m2 | 2ème | Optionné Mais pas encore vendu 😉 | 213 725€ | Voir |
| Voir | Disponible | 291 071€ | C31 | Appt. | - | 63.19m2 | 3ème | Disponible | 291 071€ | Voir |
| Voir | Disponible | 294 142€ | C41 | Appt. | - | 63.01m2 | 4ème | Disponible | 294 142€ | Voir |
| Voir | Disponible | 304 720€ | C43 | Appt. | - | 75m2 | 4ème | Disponible | 304 720€ | Voir |
| Voir | Disponible | 297 782€ | C51 | Appt. | - | 63.01m2 | 5ème | Disponible | 297 782€ | Voir |
| Voir | Disponible | 321 896€ | C52 | Appt. | - | 74.23m2 | 5ème | Disponible | 321 896€ | Voir |
| Voir | Optionné | 247 962€ | A15 | Appt. | - | 60.51m2 | 1er | Optionné Mais pas encore vendu 😉 | 247 962€ | Voir |
| Voir | Disponible | 330 880€ | C21 | Appt. | - | 86.02m2 Le bon plan | 2ème | Disponible | 330 880€ | Voir |
| Voir | Optionné | 227 488€ | C32 | Appt. | - | 55.95m2 | 3ème | Optionné Mais pas encore vendu 😉 | 227 488€ | Voir |