Prix
301 318€
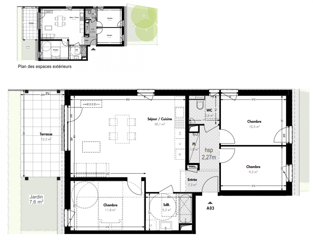
Type
Appt. au 0-RDC
Pièces
T4
Surface
77.91 m²
Le bon plan
Exposition
Nord
Ville
Villerupt (54190)
Livraison
4ème trimestre 2026
Informations
01 81 80 39 10

Présentation du programme " LES LODGES DU PARC "

Au cœur de l’éco-quartier de Cantebonne à Villerupt, nous vous proposons une situation exceptionnelle à seulement quelques minutes du Grand-Duché du Luxembourg pour ce projet qui s’établira sur un front de forêts et de champs offrant une vue imprenable pour un cadre idyllique. Ce nouveau hameau résidentiel vous séduira par la beauté de ses aménagements paysagers, mais aussi par son empreinte résolument nature à 10 minutes du Luxembourg et de Esch-sur-Alzette. 
Le site est particulièrement calme et la résidence est en tout point conçue pour se raccrocher à la nature tout en profitant de la proximité des commerces nécessaires au quotidien.

Autres logements T4 du programme " LES LODGES DU PARC "

Disponibilité Prix Genre Pièces Surface Étage
Voir
Disponible
363 143€ Appt. T4 83.14m2 2ème
Voir
Disponible
357 218€ Appt. T4 83.14m2 3ème
Voir
Disponible
356 843€ Appt. T4 83.14m2 1er
DO NOT CLICK