330 000€
Appt. au 0-RDC
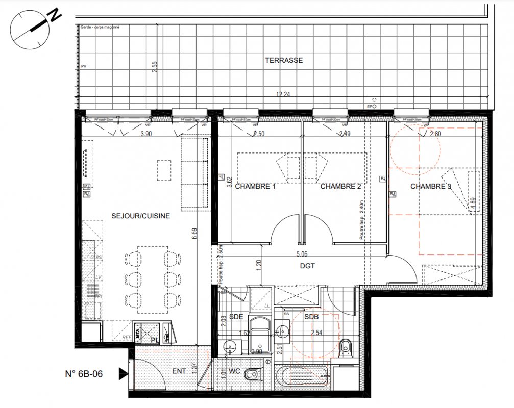
T4
79.15 m²
Nord
Montigny-lès-Metz (57158)
3ème trimestre 2027
01 81 80 39 10
Présentation du programme " OXYGENE "
LE PRINTEMPS DE L'IMMO : FRAIS DE NOTAIRE OFFERTS !*Les travaux sont en cours à Montigny-Lès-Metz !Découvrez les derniers appartements neufs de ce programme immobilier neuf à Montigny-lès-Metz : OXYGENE. Situé au 4 rue Jean Monnet, au coeur de l'écoquartier Lizé, profitez ici d'un environnement verdoyant au pied de 12 000 m² de prairie. Derniers T2 de 44 m² avec balcon ou terrasse - salle de bains équipée - WC séparé et placardDerniers T3 de 65 à 69 m² avec terrasse et/ou loggia - exposé sud ouest et sud est - place de stationnementDerniers T4 de 80 à 95 m² avec terrasse ou balcon - place de stationnement et vues dégagées ! Envie d’investir ? Cette résidence est éligible au nouveau dispositif d’investissement locatif JEANBRUN, pour constituer un patrimoine, réduire vos impôts et préparer votre retraite !*Frais de notaire offerts, offre valable pour les 5 prochains réservataires, sous conditions de la signature d'un contrat de réservation jusqu'au 15/05/26 et à la réitération de l’acte authentique de vente dans les 3 mois qui suivent la réservation.
Autres logements T4 du programme " OXYGENE "
| Disponibilité | Prix | No | Genre | Pièces | Surface | Étage | Disponibilité | Prix | ||
|---|---|---|---|---|---|---|---|---|---|---|
| Voir | Disponible | 460 000€ | 6B-43 | Appt. | T4 | 95.6m2 | 4ème | Disponible | 460 000€ | Voir |
| Voir | Disponible | 360 000€ | 6B-37E | Appt. | T4 | 88m2 | 3ème | Disponible | 360 000€ | Voir |
| Voir | Disponible | 355 000€ | 6B-17E | Appt. | T4 | 89.1m2 | 1er | Disponible | 355 000€ | Voir |
| Voir | Disponible | 350 000€ | 6B-27E | Appt. | T4 | 89.1m2 | 2ème | Disponible | 350 000€ | Voir |