Prix
199 309€  (TVA 20%)
182 700€  (TVA 10%)
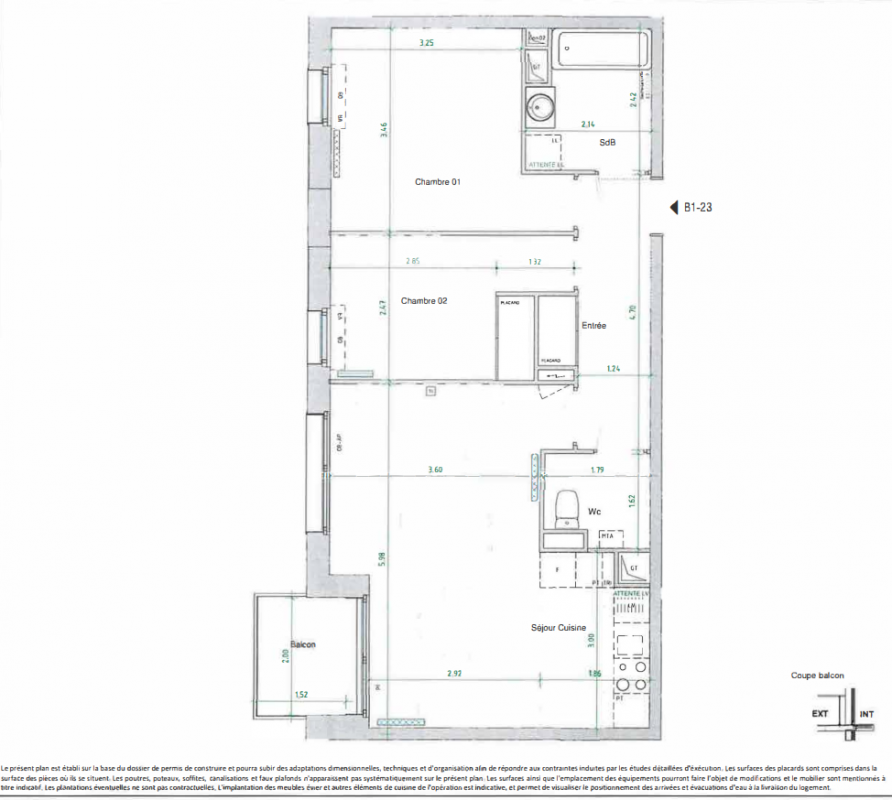
Type
Appt. au 2ème
Pièces
T3
Surface
60.5 m²
Exposition
Nord
Ville
Croix (59170)
Livraison
2ème trimestre 2026
Informations
01 81 80 39 10

Présentation du programme "LE BORD COTE"

Située au nord-est de Lille, Croix est une adresse résidentielle prisée qui séduit par son cadre de vie élégant et son dynamisme économique, porté notamment par les enseignes de l’Association Familiale Mulliez, historiquement ancrée sur le territoire. Au cœur d’un quartier en plein essor, la résidence s’inscrit dans un environnement vivant et mixte, où se côtoient appartements, bureaux, activités et une guinguette au bord de l’eau. Le Bord-Côte profite d’un accès piéton immédiat au centre-ville et aux Halles de la Maillerie, à seulement une minute de la résidence. La desserte est renforcée par une connexion directe vers Lille, assurée par la ligne 2 du métro et le tramway R, tous deux situés dans un rayon de 700 mètres.

Autres logements T3 du programme "LE BORD COTE"

Disponibilité Prix Genre Pièces Surface Étage
Voir
Disponible
195 873€ Appt. T3 60.5m2 1er
Voir
Optionné
201 371€ Appt. T3 64.05m2 1er
DO NOT CLICK