Ce lot n’est plus disponible chez VIANOVA ou est vendu.

Vous pouvez revenir dans 24h pour vérifier le stock à jour ou contacter un conseiller Vianova pour vérifier le stock en direct.
Vous pouvez également continuer votre recherche sur notre site « ici ».

Prix
185 000€
Type
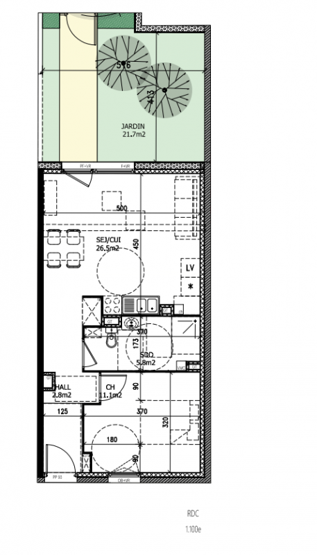
Appt. au 0-RDC
Pièces
T2
Surface
46.2 m²
Exposition
-
Ville
Tourcoing (59200)
Livraison
4ème trimestre 2024
Informations
01 81 80 39 10

Présentation du programme "OASIS"

Programme neuf OASIS à Tourcoing - 59200. Renseignez-vous dès maintenant ! Pour toutes informations complémentaires, prenez contact avec nous !

Autres logements T2 du programme "OASIS"

Pas de logements disponibles
DO NOT CLICK