Prix
310 000€
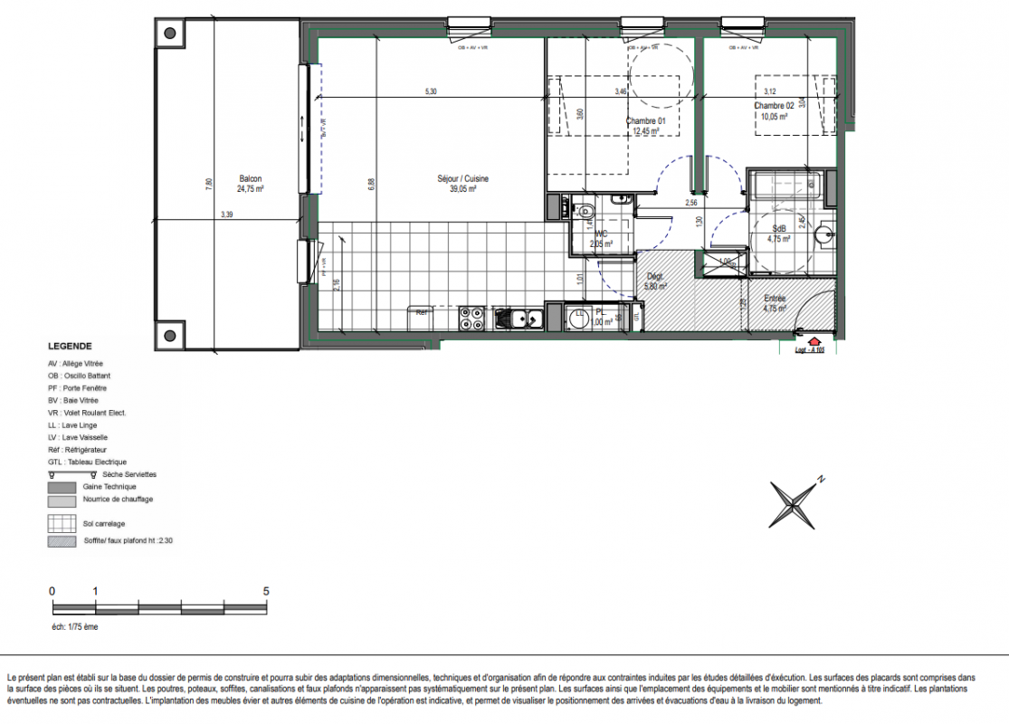
Type
Appt. au 1er
Pièces
T3
Surface
79.9 m²
Exposition
-
Ville
Arras (62000)
Livraison
2ème trimestre 2027
Informations
01 81 80 39 10

Présentation du programme "La Belle Echappée - ARRAS"

Devenez propriétaire dès 686€ par mois !**

Nichée dans un écrin de verdure, cette résidence s'intègre harmonieusement à son environnement, entre ville et nature.
Située à quelques minutes seulement du centre-ville de Saint-Nicolas, elle séduit par son architecture contemporaine et élégante.

Composée de 38 appartements du 2 au 4 pièces, la résidence offre des espaces de vie spacieux, lumineux et prolongés par un balcon ou une terrasse pour profiter pleinement du cadre verdoyant.

Une adresse rare, à taille humaine, qui allie confort, sérénité et proximité du centre-ville.

*Frais de notaire offerts hors frais de publicité foncière, frais d'établissement du règlement de copropriété et frais liés au financement et aux garanties pour la réservation d'un appartement dans la résidence LA BELLE ECHAPPEE à ARRAS jusqu'au 30/06/2026 sous réserve de la signature de l'acte de vente dans les délais prévus au contrat de réservation.

Autres logements T3 du programme "La Belle Echappée - ARRAS"

Disponibilité Prix Genre Pièces Surface Étage
Voir
Disponible
260 000€ Appt. T3 71.15m2 1er
DO NOT CLICK