391 242€ (TVA 20%)
343 967€ (TVA 5.5%)
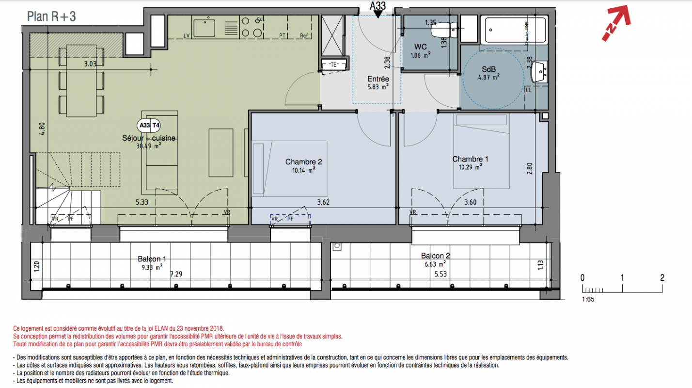
Appt. au 3ème
T4
83.7 m²
-
Berck (62600)
1er trimestre 2027
01 81 80 39 10
Présentation du programme "Le Flibustier"
Le Flibustier est un programme immobilier neuf situé à Berck-sur-Mer, station balnéaire reconnue de la Côte d'Opale, à seulement 6 minutes à vélo de la plage et à proximité immédiate du centre-ville, des commerces et des services.
La résidence se compose de 20 appartements neufs, du studio au T4 en duplex, dont 2 duplex familiaux, tous dotés d'un balcon ou d'une terrasse. Les logements offrent des volumes fonctionnels, une luminosité naturelle optimisée et des prestations conformes aux standards actuels de l'immobilier neuf : ascenseur PMR, stationnements, local à vélos et accès sécurisé.
L'architecture contemporaine, avec façades en enduit clair et toiture cuivrée, s'intègre harmonieusement dans l'environnement urbain de Berck-sur-Mer et contribue à la valorisation patrimoniale du projet.
Conforme à la réglementation RE2020, la résidence garantit des performances énergétiques maîtrisées et un confort durable pour les occupants.

