409 000€
Appt. au 0-RDC
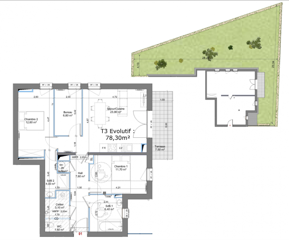
T3
78.3 m²
Nord-Est
Cucq (62780)
4ème trimestre 2027
01 81 80 39 10
Présentation du programme "Rosalie"
La résidence Rosalie se situe Boulevard Edmond Labrasse, au cœur de Stella‑Plage, dans un environnement résidentiel prisé, proche de la mer et des commerces.Inspirée de l’architecture traditionnelle « stellienne », elle propose 16 logements du 2 au 4 pièces, répartis sur deux niveaux (RDC et R 1 avec combles). Conçus pour offrir confort et luminosité, les appartements bénéficient de volumes généreux, de celliers selon typologie, et d’espaces extérieurs privatifs : balcon, terrasse ou jardin en rez‑de‑chaussée. Le projet intègre également 12 garages, 7 places de stationnement aériennes, ainsi qu’un local à vélos.Rosalie combine ainsi confort moderne et ambiance balnéaire grâce à un habitat à taille humaine parfaitement intégré dans son environnement naturel.Un emplacement recherché, dans une station balnéaire préservée, proche de la plage, des commerces et à seulement 10 minutes du Touquet‑Paris‑PlageLogements lumineux, aux surfaces généreuses allant de 44 m² à 101 m² selon typologieEspaces extérieurs pour tous : jardins privatifs, balcons, terrasses et certaines verrières de balconArchitecture typique stellienne, intégrée dans un environnement résidentiel calmePerformances thermiques et acoustiques RE 2020, garantissant confort et maîtrise énergétiqueConfort quotidien renforcé : ascenseur, stationnements sécurisés, local mobilités doucesAppartementsRevêtement de sol : PVC U2SP3 dans toutes les pièces, y compris entrées et dégagements ; coloris au choix parmi 4 teintesMenuiseries extérieures : PVC blanc, double vitrage thermique et acoustique, oscillo‑battants selon plans. Volets roulants manuels sur toutes les fenêtres. Salles de bain et salles d’eau : faïence toute hauteur autour des douches (2 ou 3 faces selon plan), meuble vasque avec miroir et éclairage, baignoire ou receveur selon typologie, robinetterie mitigeur chromé.Chauffage et eau chaude : chauffage électrique (panneaux rayonnants) ou systèmes équivalents conformes RE 2020 ; ballon thermodynamique pour la production d’ECSÉquipements électriques : installation conforme NFC 15‑100, prises RJ45, pré‑équipement fibre optique, visiophone, tableau de communication.Extérieurs privatifs : Balcons en béton brut / Terrasses sur plots ou dalles béton selon niveaux / Jardins privatifs engazonnés en RDC selon plansÀ piedCommerces de proximité et services du quartierPlage de Stella‑PlageArrêts de bus vers Le Touquet / ÉtaplesEn voitureLe Touquet‑Paris‑Plage : 10 min via Avenue François Godin (6,5 km)Parc Baga
Autres logements T3 du programme "Rosalie"
| Disponibilité | Prix | No | Genre | Pièces | Surface | Étage | Disponibilité | Prix | ||
|---|---|---|---|---|---|---|---|---|---|---|
| Voir | Disponible | 339 000€ | 14 | Appt. | T3 | 62.6m2 | 1er | Disponible | 339 000€ | Voir |
| Voir | Disponible | 359 000€ | 22 | Appt. | T3 | 65.4m2 | 2ème | Disponible | 359 000€ | Voir |
| Voir | Optionné | 394 000€ | 24 | Appt. | T3 | 73.8m2 | 2ème | Optionné Mais pas encore vendu 😉 | 394 000€ | Voir |
| Voir | Optionné | 369 000€ | 25 | Appt. | T3 | 66.7m2 | 2ème | Optionné Mais pas encore vendu 😉 | 369 000€ | Voir |

