Prix
192 227€
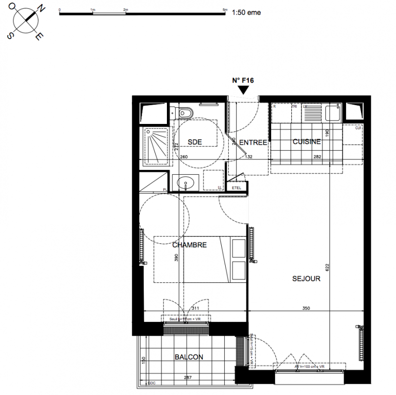
Type
Appt. au 1er
Pièces
T2
Surface
48.25 m²
Exposition
-
Ville
Étaples (62630)
Livraison
1er trimestre 2026
Informations
01 81 80 39 10

Présentation du programme "Jardins d'Opale"

Commune à taille humaine située sur la Côte d’Opale, Etaples s’étend sur la rive droite de la Canche. Face au Touquet, Etaples bénéficie de l’animation de sa commune voisine, avec sa plage, son casino, son hippodrome et de son aéroport.

Grâce à sa proximité avec la gare SNCF et l’A16, Etaples est connectée aux grandes villes comme Amiens, Lille et Paris.

Un programme éligible à l’investissement libre ou meublé avec un très bon rapport locatif qui possède de nombreux atouts dans une commune qui dispose de tous les équipements et services utiles : établissement scolaires, commerces variés, infrastructures sportives et culturelles dont un centre nautique et des musées.

Cité de pêcheurs prospère durant plusieurs siècles, elle reste aujourd’hui encore tournée vers la mer. Le port de plaisance rénové, le marché aux poissons du port d’Etaples ou encore la joute à canotes de la ducasse de la Saint-Michel entretiennent ces traditions maritimes et font le bonheur des locaux comme des touristes.




Veuillez noter que les TMA sont terminés sur ce programme.

Autres logements T2 du programme "Jardins d'Opale"

Pas de logements disponibles
DO NOT CLICK