Prix
99 900€
Type
Appt. au 2ème
Pièces
Studio
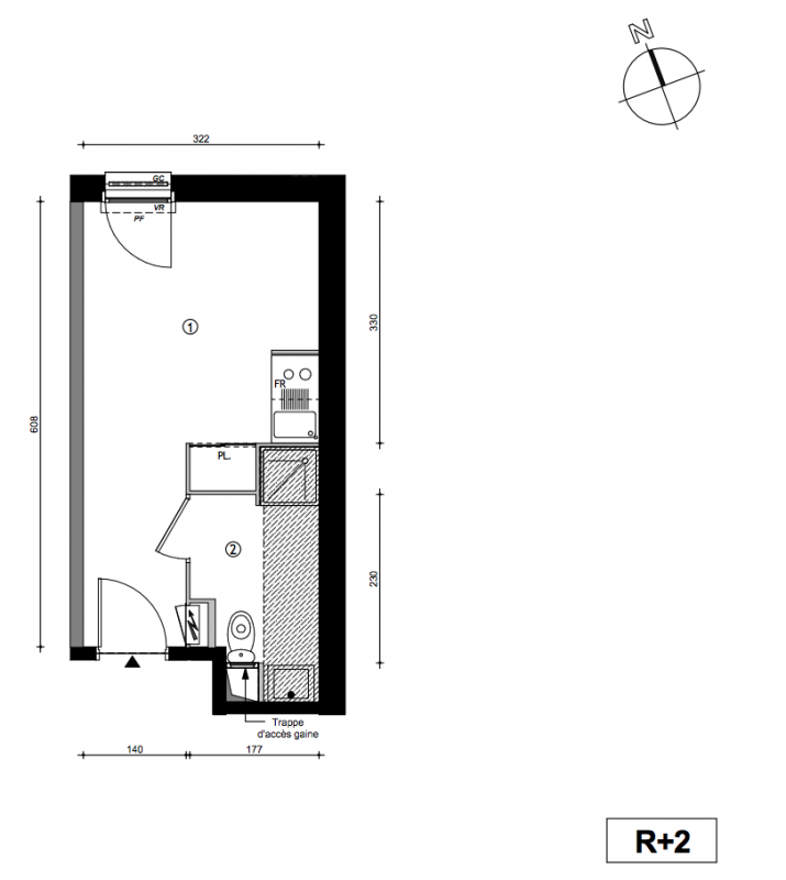
Surface
19.62 m²
Exposition
Nord
Ville
Palaiseau (91120)
Livraison
1er trimestre 2025
Informations
01 81 80 39 10

Présentation du programme "Résidence Étudiante Studéa Palaiseau Centre"

Descriptif de la résidenceA proximité de l’Ecole Polytechnique et de SupOptique, cette résidence se situe dans un écoquartier, à 30 minutes de Paris. Avec de nombreux parcs, jardins et espaces verts publics, profitez d’un cadre de vie agréable. La résidence est également proche des commerces (Franprix, bureau de Poste, boulangeries, …) et des transports (ligne RER B arrêt Palaiseau), pour vous rendre facilement dans les campus de la capitale. Avec des loyers attractifs et un environnement calme, vous pourrez bénéficier de nombreux services au sein de la résidence, tels qu’un accès internet haut débit offert, une salle de réunion ou d’études, un local à deux roues, un parking, des distributeurs de boissons ou de plats chauds, un système de vidéosurveillance, la location de linge de main, une laverie et d’une cafétéria. Services ménage et petit-déjeuner en supplément.Descriptif gestionnaireEn 2007, le groupe Nexity intègre Lamy Résidence, alors le premier réseau français de location étudiante. Ce rapprochement opérationnel, avec la capitalisation boursière de Nexity dépassant un milliard deux cents millions d'euros, conduit à la création d'une enseigne commune en janvier 2012 : Nexity Studéa. En 2012, Nexity Studéa consolide sa position de leader en acquérant le groupe Icade Résidences Services et son enseigne "Les Lauréades", appartenant à la Caisse des Dépôts et Consignation. Cette acquisition permet à Nexity Studéa d'ajouter 60 résidences étudiantes supplémentaires, principalement en région parisienne, totalisant environ 8 000 logements et générant un chiffre d'affaires de 40 millions d'euros. Actuellement, Nexity Studéa gère près de 120 résidences meublées, équipées et connectées, réparties dans plus de 50 villes en France et en Suisse. + GESTIONNAIRE - Un parc locatif qui s’enrichit chaque année des résidences étudiantes dont le groupe assure la promotion - Filiale du groupe Nexity, leader française de la promotion et des services immobilierArguments de venteAvec 550 000 étudiants, la région Ile-de-France est celle où la demande en logement étudiant est la plus importante Plus de 30 000 étudiants à proximité du site ; École Polytechnique à 4 mn en voiture (3 000 étudiants) Très bonne desserte : gare RER B à 15 mn à pied (Palaiseau Centre) et gare TGV/RER de Massy Palaiseau Bail commercial ferme de 9 ans STUDEA (Nexity) Prestations adaptées aux étudiantes : salle de détente - cafétéria - laverie, lingerie - Local vélo - WifiInformations du bail...

Autres logements Studio du programme "Résidence Étudiante Studéa Palaiseau Centre"

Disponibilité Prix Genre Pièces Surface Étage
Voir
Disponible
80 000€ Appt. Studio 18.25m2 2ème
Voir
Disponible
95 600€ Appt. Studio 18.38m2 4ème
DO NOT CLICK