Prix
752 000€
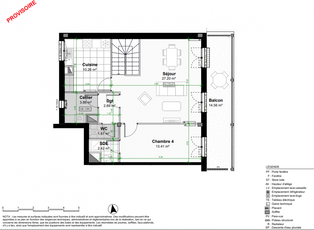
Type
Appt. au 6ème
Pièces
T5
Surface
125.67 m²
Exposition
Est
Ville
Bagneux (92220)
Livraison
3ème trimestre 2028
Informations
01 81 80 39 10

Présentation du programme "LE HAUT BOIS"


 Revêtement de sol en parquet bois contrecollé dans les entrées, séjours et chambres
Carrelage en grès cérame dans les cuisines, salles de bain et d'eau
Salle de bains et salle d'eau avec faïence toute hauteur au droit de chaque côté de la baignoire/douche, meuble vasque avec miroir, bandeau lumineux et sèche-serviettes
Lave-mains dans les WC indépendants
Menuiseries extérieures bois
Chauffage : raccordé au réseau de chaleur urbain

Autres logements T5 du programme "LE HAUT BOIS"

Disponibilité Prix Genre Pièces Surface Étage
Voir
Disponible
607 000€ Appt. T5 102.91m2 2ème
Voir
Disponible
620 000€ Appt. T5 102.91m2 3ème
Voir
Disponible
792 000€ Appt. T5 134.66m2 6ème
DO NOT CLICK