399 900€
Appt. au 2ème
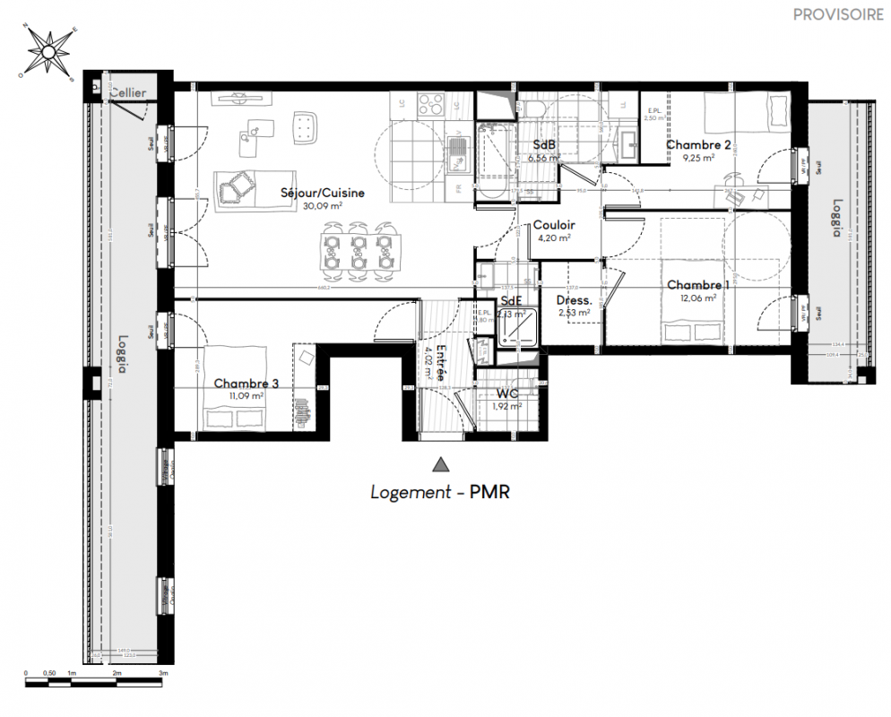
T4
83.85 m²
-
Chanteloup-en-Brie (77600)
1er trimestre 2029
01 81 80 39 10
Présentation du programme "SQUARE DES ARTS"
Vos frais de Notaire offerts * + Cuisine offerte pour les 10 premiers réservataires **
Située boulevard de la Plaine, la résidence s'inscrit dans un quartier en développement, à proximité immédiate des commerces, des écoles et des transports reliant rapidement Val d'Europe et Paris.
La résidence propose 65 appartements du studio au 5 pièces, adaptés à tous les parcours résidentiels.
Organisée en trois îlots, SQUARE DES ARTS se distingue par une architecture contemporaine et chaleureuse mêlant enduits clairs, bois et larges ouvertures. Les volumes sont pensés pour préserver l'intimité et dégager les vues, avec des porches traversants favorisant la circulation et les perspectives.
Les appartements offrent des espaces lumineux avec de belles hauteurs sous plafond (2,60 m) et, pour la majorité, une double orientation. Tous bénéficient d'un espace extérieur : balcon, loggia, terrasse ou terrasse tropézienne en dernier étage, prolongeant les espaces de vie.
Les + du programme :
• Coeur d'îlot paysager de plus de 3 000 m²
• Salle polyvalente et espaces partagés
• 90 places de stationnement et 116 emplacements vélos
• Résidence sécurisée (digicode, vidéophone, badge Vigik)
• Prestations intérieures qualitatives (parquet, faïence, équipements modernes)
Au quotidien, profitez d'un environnement complet :
• Commerces, supermarché et services à proximité immédiate
• Écoles, collège et équipements sportifs accessibles à pied
• Bus à 1 minute reliant le RER A (Val d'Europe) en environ 8 minutes
• Accès rapide à l'A4 et proximité de Marne-la-Vallée et Disneyland Paris
Un cadre de vie équilibré entre nature préservée et dynamisme urbain, idéal pour habiter ou investir à proximité immédiate des pôles économiques de l'Est francilien.
Contactez-nous dès maintenant au 01 87 52 25 22 pour obtenir plus d'informations et découvrir les logements disponibles.
Autres logements T4 du programme "SQUARE DES ARTS"
| Disponibilité | Prix | No | Genre | Pièces | Surface | Étage | Disponibilité | Prix | ||
|---|---|---|---|---|---|---|---|---|---|---|
| Voir | Disponible | 369 900€ | A1/33 | Appt. | T4 | 77.49m2 | 3ème | Disponible | 369 900€ | Voir |
| Voir | Disponible | 389 900€ | C/22 | Appt. | T4 | 81.29m2 | 2ème | Disponible | 389 900€ | Voir |
| Voir | Disponible | 384 900€ | C/12 | Appt. | T4 | 81.83m2 | 1er | Disponible | 384 900€ | Voir |
| Voir | Disponible | 389 900€ | A2/33 | Appt. | T4 | 83.61m2 | 3ème | Disponible | 389 900€ | Voir |
| Voir | Disponible | 394 900€ | A1/14 | Appt. | T4 | 83.85m2 | 1er | Disponible | 394 900€ | Voir |
| Voir | Disponible | 394 900€ | A2/14 | Appt. | T4 | 83.85m2 | 1er | Disponible | 394 900€ | Voir |
| Voir | Disponible | 409 900€ | A1/24 | Appt. | T4 | 83.85m2 | 2ème | Disponible | 409 900€ | Voir |
| Voir | Disponible | 399 900€ | B/33 | Appt. | T4 | 85.49m2 | 3ème | Disponible | 399 900€ | Voir |
| Voir | Disponible | 399 900€ | C/33 | Appt. | T4 | 88.16m2 | 3ème | Disponible | 399 900€ | Voir |