456 500€
- €
1 042€
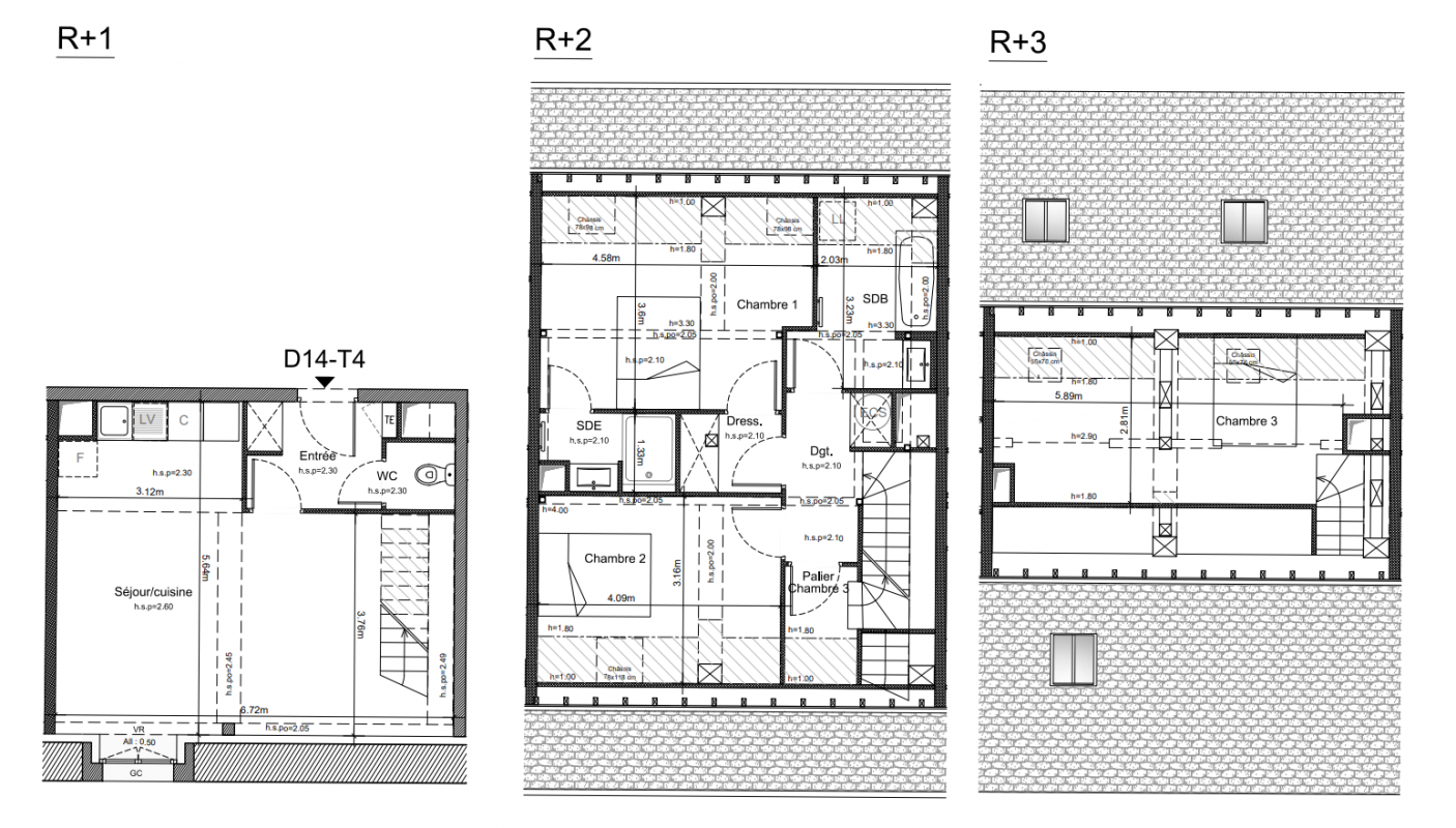
Type
Appt. au 1er
Pièces
T4
Surface
82.67 m²
Exposition
-
Ville
Chessy (77700)
Livraison
2ème trimestre 2026
Informations
01 81 80 39 10

Présentation du programme "LA FERME DE CHESSY VEFA"

A Marne-la-Vallée-Chessy, Vianova et Histoire & Patrimoine vous dévoilent un secret bien gardé : La ferme de Chessy. Un lieu jalousement conservé pendant des années en plein cœur d’un parc classé.

Découvrez sans plus tarder ce havre de paix composé d'appartements, du studio à la maison 5 pièces, alliant confort moderne et charme de l'ancien.




LES ATOUTS DU PROGRAMME :

Le charme de l'ancien aux avantages du Pinel
Des extérieurs
Après 6 ans de Pinel, exploitation possible en location meublée avec forte demande locative

Autres logements T4 du programme "LA FERME DE CHESSY VEFA"

Disponibilité Prix Genre Pièces Surface Étage
Voir
Disponible
460 000€ Appt. T4 79.04m2 0-RDC
DO NOT CLICK