Prix
279 000€  (TVA 20%)
245 288€  (TVA 5.5%)
Type
Appt. au 1er
Pièces
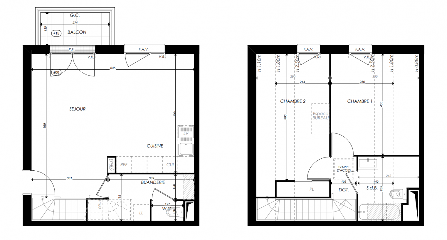
T3
Surface
67.69 m²
Exposition
Nord
Ville
Melun (77000)
Livraison
1er trimestre 2028
Informations
01 81 80 39 10

Présentation du programme "Serenova"

Une adresse privilégiée à Melun
À 15 min* à pied du cœur de Melun, découvrez une adresse où il fait bon vivre. Pavillonnaire et verdoyant, le quartier de l’Almont offre un quotidien serein avec des écoles, une zone commerciale à proximité immédiate et une desserte efficace. En pied de cette nouvelle réalisation, le bus 47 relie la Place Saint-Jean et les halles Gaillardon en 3 min*, la gare en 20 min*. Fondu dans le paysage environnant, cette résidence adopte une architecture séquencée, rythmée par des décrochés de façade et des toits pointus, évoquant les maisons voisines. Les appartements se déclinent en un large choix d’agencements, d’exposition et de surfaces. Et pour plus de bien-être, tous sont ouverts sur des balcons. * Source : Google Maps

Autres logements T3 du programme "Serenova"

Disponibilité Prix Genre Pièces Surface Étage
Voir
Disponible
279 000€ Appt. T3 67.69m2
Le bon plan
1er
DO NOT CLICK