Prix
293 200€ (TVA 20%)
257 772€ (TVA 5.5%)
293 200€ (TVA 20%)
257 772€ (TVA 5.5%)
Type
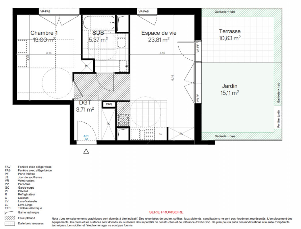
Appt. au 0-RDC
Appt. au 0-RDC
Pièces
T2
T2
Surface
45.89 m²
45.89 m²
Exposition
-
-
Ville
Aubervilliers (93300)
Aubervilliers (93300)
Livraison
2ème trimestre 2028
2ème trimestre 2028
Informations
01 81 80 39 10
01 81 80 39 10
Présentation du programme "Stand Up"
[NOUVEAU DISPOSITIF JEANBRUN : réduisez vos impôts et augmentez votre rentabilité !]
AU COEUR DU FORT D'AUBERVILLIERS ! Découvrez notre nouvelle résidence à AUBERVILLIERS (93) composée d'appartements du studio au 5 pièces aux prestations soignées. Vous profitez d'une adresse d'exception proche du métro, des établissements scolaires et des commerces.