200 190€ (TVA 20%)
176 000€ (TVA 5.5%)
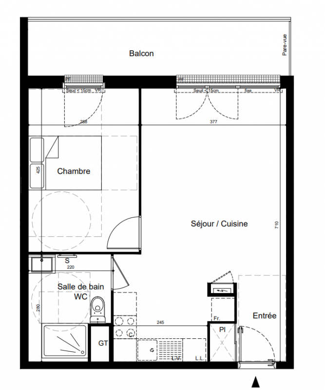
Appt. au 2ème
-
46.1 m²
-
Drancy (93700)
3ème trimestre 2027
01 81 80 39 10
Présentation du programme "L'essentiel"
FRAIS DE NOTAIRE OFFERTS - TVA 5,5% - BRS RESIDENCE L'essentiel A DRANCY (93)
RENDEZ-VOUS DANS NOTRE ESPACE DE VENTE : 133 rue Sadi Carnot à Drancy.
Découvrez L'essentiel, notre nouvelle résidence idéalement située dans une commune dynamique et pleine de charme. Drancy bénéficie d'une position stratégique à mi-chemin entre le coeur de Paris et l'aéroport Charles-de-Gaulle.
VOTRE CADRE DE VIE :
- Plus de 33 hectares d'espaces verts dont le Parc de Ladoucette.
- Ville labellisée "Ville Fleurie" depuis 2008 pour un environnement agréable.
- Patrimoine riche avec le Château de Ladoucette et la Cité de la Muette.
TRANSPORTS ET CONNECTIVITÉ :
- RER B (Gare de Drancy) : rejoignez Paris Gare du Nord en seulement 15 minutes.
- Desserte complète par bus et tramway pour vos trajets quotidiens.
- Futur Grand Paris Express pour une valorisation de votre patrimoine.
AVANTAGES FINANCIERS :
- Accession à la propriété via le dispositif BRS (Bail Réel Solidaire).
- TVA réduite à 5,5% pour l'achat de votre résidence principale.
- FRAIS DE NOTAIRE OFFERTS sur votre projet immobilier.
Contactez nos conseillers pour découvrir les plans et les conditions d'éligibilité. *Les prix tiennent compte de la TVA réduite. Voir conditions auprès de nos conseillers.
Autres logements - du programme "L'essentiel"
| Disponibilité | Prix | No | Genre | Pièces | Surface | Étage | Disponibilité | Prix | ||
|---|---|---|---|---|---|---|---|---|---|---|
| Voir | Optionné | 194 502€ | A104 | Appt. | - | 46.4m2 | 1er | Optionné Mais pas encore vendu 😉 | 194 502€ | Voir |
| Voir | Disponible | 233 175€ | A210 | Appt. | - | 65.2m2 | 2ème | Disponible | 233 175€ | Voir |
| Voir | Disponible | 238 863€ | A305 | Appt. | - | 65.2m2 | 3ème | Disponible | 238 863€ | Voir |