Prix
297 441€
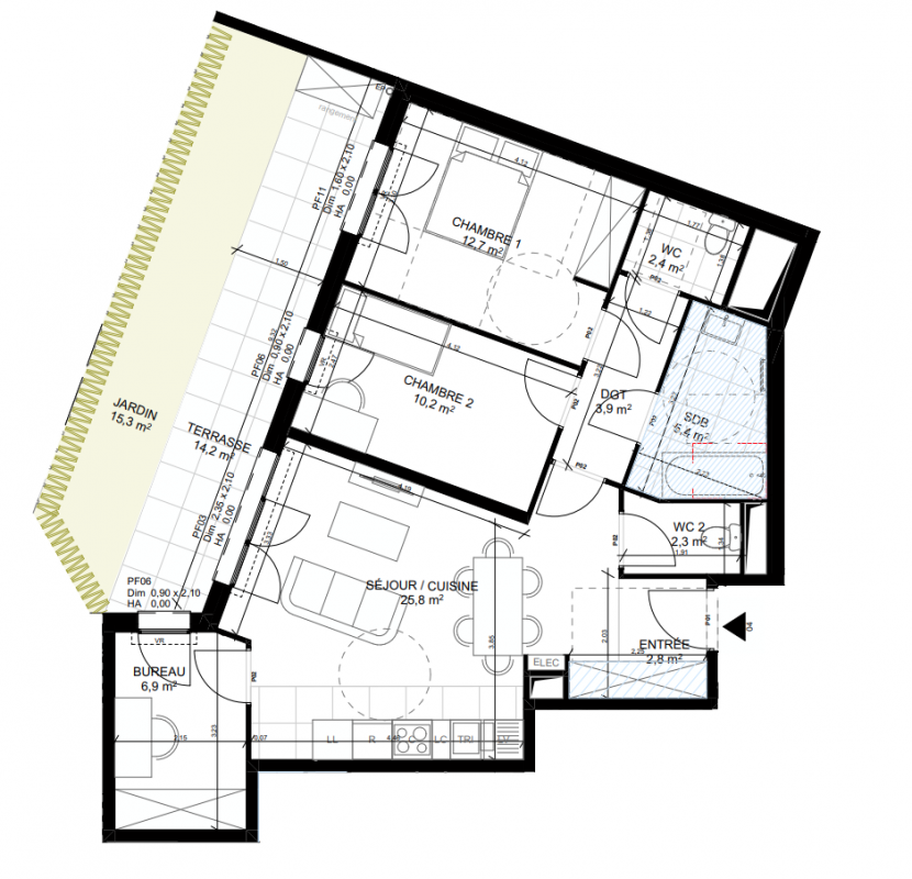
Type
Appt. au 0-RDC
Pièces
T3
Surface
72.4 m²
Exposition
-
Ville
Saint-Denis (93200)
Livraison
3ème trimestre 2027
Informations
01 81 80 39 10

Présentation du programme "AMBRE"

"AMBRE", une nouvelle résidence signée Adastra, à seulement 4min à pied du T5 arrêt « Mairie de Pierrefitte » et à 10 min en bus de la Gare RER D arrêt « Pierrefitte-Stains ». Une adresse pratique, proche des commerces et de toutes les commodités. Découvrez une collection d'appartements neufs du studio au 4 pièces avec de très beaux espaces extérieurs : jardin, terrasse ou balcon (avec rangements extérieurs intégrés). Pour un confort optimal, les appartements profitent d’une double orientation. Parkings boxés en sous-sol.

Autres logements T3 du programme "AMBRE"

Disponibilité Prix Genre Pièces Surface Étage
Voir
Disponible
287 204€ Appt. T3 68.8m2 6ème
Voir
Disponible
285 873€ Appt. T3 68.8m2 5ème
Voir
Disponible
286 442€ Appt. T3 68.8m2 3ème
DO NOT CLICK