Prix
265 400€  (TVA 20%)
233 331€  (TVA 5.5%)
Type
Appt. au 1er
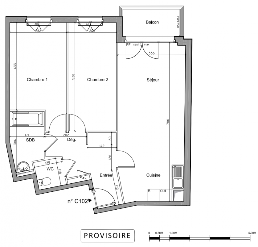
Pièces
T3
Surface
65.65 m²
Exposition
Nord
Ville
Saint-Denis (93200)
Livraison
1er trimestre 2027
Informations
01 81 80 39 10

Présentation du programme "Programme neuf Saint-Denis (93200)"

Démarrage des travaux à Saint-Denis ! Devenez propriétaire de votre appartement neuf pour le même prix que votre loyer grâce à la TVA réduite à 5,5% !Située dans le département de la Seine-Saint-Denis en région Île-de-France, Saint-Denis offre un cadre de vie dynamique et diversifié à ses habitants. La ville est imprégnée d'une riche histoire, témoignant de son patrimoine culturel datant de l'époque gallo-romaine. Aujourd'hui, cette ville moderne et cosmopolite accueille une population dynamique, créant ainsi une atmosphère chaleureuse et accueillante.Cette future adresse bénéficie d'une localisation stratégique, offrant un accès facile aux commodités urbaines tout en préservant un environnement paisible. Vous pourrez profiter de la proximité des commerces, restaurants, pharmacie, banques, boulangerie, boucheries et des services, tout en appréciant la sérénité des parcs et espaces verts environnants.Composée d'appartements allant du 2 au 4 pièces, cette résidence est répartie sur quatre petits bâtiments de deux étages, certains agrémentés de combles. Chaque logement bénéficie d'un espace extérieur tel que balcon, terrasse ou jardin pour les appartements en rez-de-chaussée, vous permettant de profiter pleinement des beaux jours. Pour votre confort, des places de parking sont disponibles en sous-sol pour tous les résidents, et une place spécialement conçue pour les personnes à mobilité réduite est prévue en extérieur. Pour encourager les déplacements écologiques, un très grand local vélo est mis à disposition pour ranger vos deux-roues en toute sécurité.Profitez également d'un charmant jardin commun et d'un cheminement piéton pour de paisibles moments de détente en plein air. Les toitures végétalisées, bien que non accessibles aux résidents, contribuent à créer un environnement plus vert et respectueux de la nature. Notre résidence combine ainsi des aspects pratiques et écologiques pour offrir un lieu de vie confortable, moderne et respectueux de l'environnement à ses futurs habitants.En ce qui concerne les transports, Saint-Denis est bien desservie par un réseau efficace de transports en commun. Des lignes de tramway et de bus relient aisément la ville à Paris et à d'autres localités voisines, offrant ainsi des options de déplacement pratiques et rapides pour les déplacements quotidiens ou les sorties.Ce nouveau programme représente une opportunité exceptionnelle de vi

Autres logements T3 du programme "Programme neuf Saint-Denis (93200)"

Pas de logements disponibles
DO NOT CLICK