319 140€
Appt. au 2ème
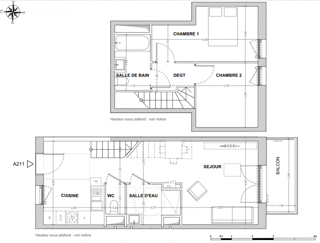
T3
64.7 m²
-
Cergy (95000)
2ème trimestre 2027
01 81 80 39 10
Présentation du programme "Vivarea"
ACHETEZ VOTRE APPARTEMENT NEUF A CERGY
Des appartements neufs à 30 km* de Paris
Située à 30 km* au nord-ouest de Paris dans le Val d’Oise, Cergy est une adresse résidentielle très attachée à la préservation de ses espaces naturels, comptant plus de 36% de son territoire en zone verte ou bleue. De l’île de loisirs de Cergy-Pontoise à Port Cergy, 1ère marina d’Île-de-France, des berges de l’Oise au Parc régional du Vexin Français, de parcs en jardins publics… Cergy jouit d’une biodiversité remarquable. Avec plus de 50% de jeunes de moins de 30 ans, la ‘’Ville-Paysage’’ est également appréciée pour ses équipements et infrastructures de loisirs attractifs, sa programmation culturelle variée, ainsi que la qualité de ses établissements d’enseignement. L’économie est particulièrement dynamique et la moitié des habitants actifs travaillent sur la commune. Facile d’accès, Cergy est reliée à l’autoroute A15 et à 3 gares (RER A et Transilien ligne L). En transports en commun, elle permet un accès à la Défense en 40 min* et à Châtelet-les-Halles en 45 min*.
Un programme immobilier neuf dans un écoquartier
La résidence ‘’Vivarea’’ prend place dans le quartier des Doux-Épis de la Plaine des Linandes, au cœur de l’écoquartier Grandes Terres, une référence en terme d’écologie urbaine. Située à 2 km* du RER A Cergy St-Christophe, votre future résidence neuve signée Vianova et Spirit offre de nombreux avantages : un groupe scolaire, un collège, un city stade, un gymnase (déjà livrés), un parc paysager de 8 ha, une crèche, des jardins pédagogiques et des potagers partagés… (à venir).
A proximité immédiate, vous profiterez des commerces et restaurants de l'Aren Park et de nombreux équipements sportifs et culturels : patinoires Aren’Ice, parc de loisirs indoor Koezio, complexe sportif Salif-Keïta, terrains de tennis…
‘’Vivarea’’ propose des appartements neufs du studio au 5 pièces avec double ou triple orientation, ouverts sur un balcon, une terrasse à ciel ouvert ou un jardin verdoyant, organisés autour d’espaces verts partagés. « Prêts à vivre », ils offrent des prestations de qualité : salles de bains aménagées, chauffage urbain au gaz, places de stationnement en sous-sol...
Certifiée NF Habitat HQE niveau excellent, la résidence répond aux plus hautes exigences visant notamment des économies d’énergie, une isolation thermique et acoustique renforcée et une meilleure qualité de l'air.
L’opération est éligible à la TVA réduite à 5,5% et au prêt à taux zéro.
*source
Autres logements T3 du programme "Vivarea"
| Disponibilité | Prix | No | Genre | Pièces | Surface | Étage | Disponibilité | Prix | ||
|---|---|---|---|---|---|---|---|---|---|---|
| Voir | Disponible | 299 230€ | A208 | Appt. | T3 | 60.6m2 | 2ème | Disponible | 299 230€ | Voir |
| Voir | Disponible | 355 600€ | A202 | Appt. | T3 | 70.7m2 | 2ème | Disponible | 355 600€ | Voir |
| Voir | Disponible | 300 080€ | A209 | Appt. | T3 | 61.3m2 | 2ème | Disponible | 300 080€ | Voir |
| Voir | Disponible | 299 840€ | A010 | Appt. | T3 | 61.3m2 | 0-RDC | Disponible | 299 840€ | Voir |
| Voir | Disponible | 311 220€ | A207 | Appt. | T3 | 61.4m2 | 2ème | Disponible | 311 220€ | Voir |