Prix
708 000€
Type
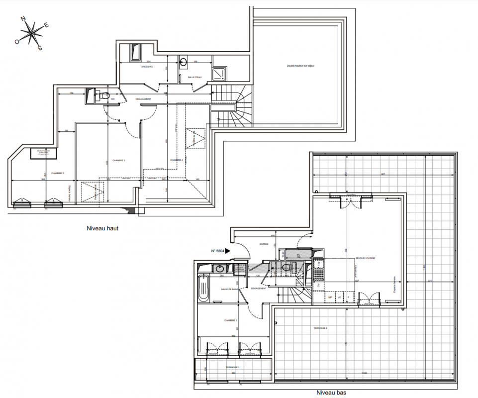
Appt. au 5ème
Pièces
T5
Surface
119.51 m²
Exposition
Sud
Ville
Cormeilles-en-Parisis (95240)
Livraison
4ème trimestre 2025
Informations
01 81 80 39 10

Présentation du programme "L'ARCHIPEL"

Offrir la sérénité d’une vie au bord de l’eau, à proximité de Paris. Tel est l’engagement de Seine Parisii, votre nouveau quartier à Cormeilles-en-Parisis. Le long des rives de Seine, commerces, écoles et restaurants convergent autour d’un port de plaisance plein de cachet. Sensation d’évasion garantie. Face à la Marina, Vianova et Federal signent deux réalisations d’exception conjuguant esthétisme et performance architecturale.

Déclinés du studio au 5 pièces, les appartements profitent d’espaces extérieurs généreux (dont des balcons, loggias ou terrasses) et de vues panoramiques sur la Seine et le port. Les résidences sont également constituées d’appartements d’exception qui seront situés au dernier étage. Ils pourront se déclinés en simplex ou duplex avec des doubles hauteurs et vitres sur séjour. Enfin, certains profitent d’un cellier d’étage ou même d’un espace évolutif : quelques mètres carrés supplémentaires que vous pourrez moduler selon vos envies.

En co-promotion avec Federal.

Autres logements T5 du programme "L'ARCHIPEL"

Pas de logements disponibles
DO NOT CLICK