Ce lot n’est plus disponible chez VIANOVA ou est vendu.

Vous pouvez revenir dans 24h pour vérifier le stock à jour ou contacter un conseiller Vianova pour vérifier le stock en direct.
Vous pouvez également continuer votre recherche sur notre site « ici ».

Prix
337 999€  (TVA 20%)
309 832€  (TVA 10%)
Type
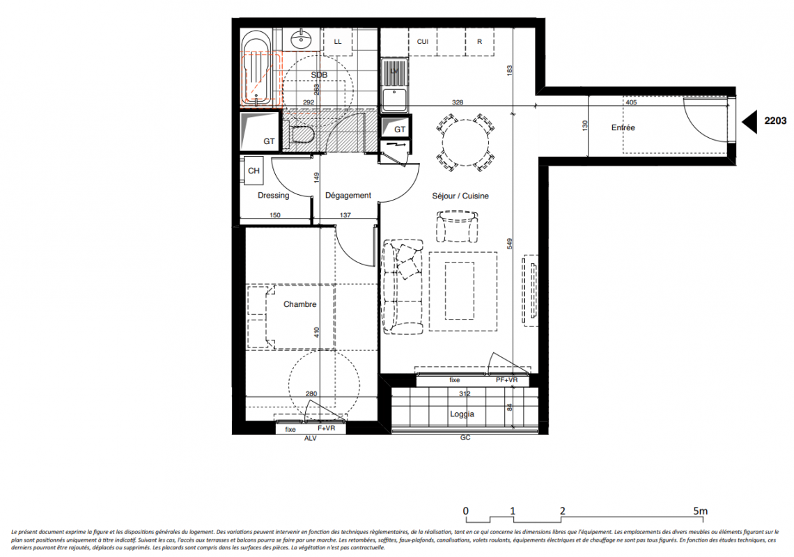
Appt. au 2ème
Pièces
T2
Surface
51 m²
Exposition
Sud-Est
Ville
Alfortville (94140)
Livraison
3ème trimestre 2025
Informations
01 81 80 39 10

Présentation du programme "HORIZON SEINE"

Découvrez aux portes de Paris, votre nouvelle résidence située à proximité des commerces, des services et des établissements scolaires de la maternelle au lycée. A quelques pas, les amoureux de la nature pourront profiter des bords de Seine ou des bords de Marne. Pour simplifier vos déplacements, la ligne 8 du métro station « Ecole Vétérinaire » est à 12 minutes à pied** et vous permettra de rejoindre Paris Bastille en 15 minutes**. En voiture, vous rejoindrez Paris par la Porte d'Ivry en seulement 11min**. La résidence à l'architecture contemporaine vous propose des appartements du studio au 5 pièces duplex s'ouvrant pour la plupart sur des loggias, balcons ou de belles terrasses plein-ciel. Vous profiterez de belles orientations et pour certains d'une vue directe sur la Seine.

Autres logements T2 du programme "HORIZON SEINE"

Pas de logements disponibles
DO NOT CLICK