Prix
574 408€
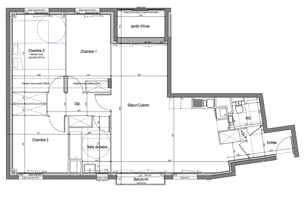
Type
Appt. au 1er
Pièces
T4
Surface
81.78 m²
Exposition
-
Ville
Gentilly (94250)
Livraison
3ème trimestre 2026
Informations
01 81 80 39 10

Présentation du programme "Prisma"

Au pied de Paris et 100M de la nouvelle station M14 "Hôpital Bicêtre", découvrez Prisma, une résidence de seulement 17 logements. Puisant allègrement dans l'inspiration Art Déco, la résidence affiche une architecture qui se démarque dans le paysage tout en réussissant une implantation harmonieuse dans son environnement.

Autres logements T4 du programme "Prisma"

Disponibilité Prix Genre Pièces Surface Étage
Voir
Disponible
567 583€ Appt. T4 77.57m2 2ème
DO NOT CLICK