715 999€ (TVA 20%)
629 482€ (TVA 5.5%)
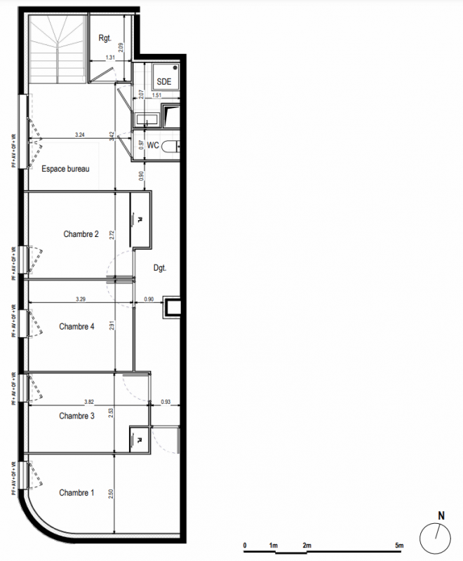
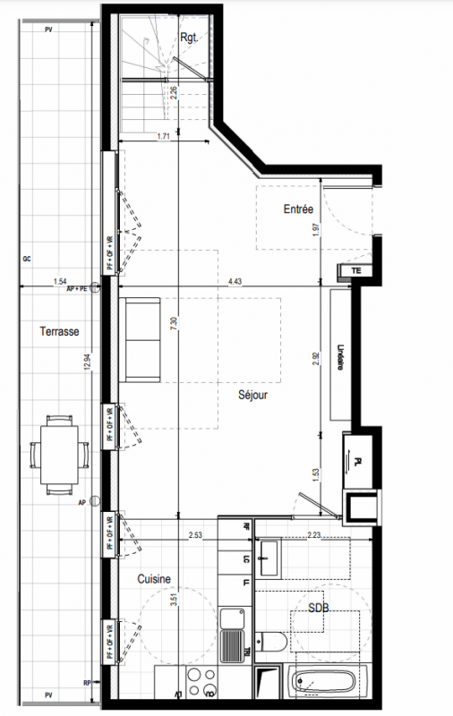
Appt. au 0-RDC
T5
119.33 m²
Ouest
L'Haÿ-les-Roses (94240)
4ème trimestre 2028
01 81 80 39 10
Présentation du programme "ALMA"
Au cœur du quartier Paul Hochart, « ALMA » profite d’une adresse privilégiée. En retrait de la grande place avec ses commerces et de l’avenue, entre jardins et mail piétonnier, la résidence cultive son bien-être tout en profitant de tous les équipements à portée de main : école, commerces, gymnase…Appartements neufs du studio au 5 pièces duplex offrent de belles expositions et sont tous prolongés par un balcon, une loggia ou une terrasse. Aux derniers étages, quelques appartements offrent de magnifiques terrasses plein ciel avec vues imprenables sur la ville.La résidence est située à 100 mètres* du Tram T7, qui rejoint en 5 minutes* le métro ligne 7, ligne 14 et la future ligne 15. L’autoroute A6 est également toute proche. Paris est à moins de 20 minutes*, même à vélo.

