Prix
555 522€
Type
Appt. au 1er
Pièces
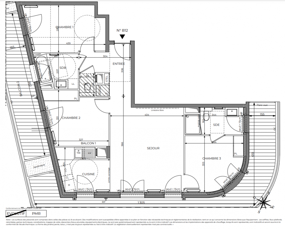
T4
Surface
80.92 m²
Exposition
Sud
Ville
L'Haÿ-les-Roses (94240)
Livraison
2ème trimestre 2028
Informations
01 81 80 39 10

Présentation du programme "LALLIER"


Porte palière BP1 avec serrure A2P*
Chape acoustique dans l’ensemble des logements
Revêtement en parquet chêne massif dans les pièces sèches
Cloisons épaisseur 7 cm dans l’ensemble des logements
Lames bois sur les surfaces extérieures privatives
Pré-équipement intérieur de tous les placards d’une profondeur supérieure à 65 cm
Revêtement carrelage en grés cérame 30 x 60 ou 60 x 60 cm dans les pièces humides
Faïence toute hauteur au droit des équipements des salles d’eau et salle de bains
Meuble vasque avec miroir et bandeau led
Colonne de douche et pare-douches dans toutes les salles d’eau
WC suspendus
Immeuble raccordé au chauffage urbain

Autres logements T4 du programme "LALLIER"

Disponibilité Prix Genre Pièces Surface Étage
Voir
Disponible
536 185€ Appt. T4 80.92m2 2ème
DO NOT CLICK