Prix
530 000€
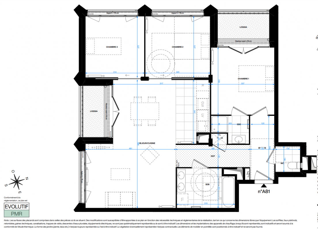
Type
Appt. au 8ème
Pièces
T4
Surface
87.65 m²
Exposition
Sud
Ville
Villejuif (94800)
Livraison
1er trimestre 2028
Informations
01 81 80 39 10

Présentation du programme "167 ARAGON"

167 ARAGON - Villejuif Découvrez une nouvelle adresse d'avenir au coeur de la ZAC Aragon ! À seulement quelques pas du métro ligne 7 - Villejuif-Aragon et du centre-ville, ce nouveau quartier dynamique conjugue résidentiel, bureaux, commerces et hôtel, pour un cadre de vie aussi pratique qu'agréable. Les appartements, du 2 pièces au 5 pièces, bénéficient de balcons ou terrasses ouvrant sur un coeur d'îlot paysager, avec une jolie place arborée en son centre. Prestations de standing, environnement verdoyant, et excellente desserte en transports : métro, tramway, bus... sans oublier la future gare du Grand Paris Express. Un emplacement stratégique pour vivre ou investir. Ne manquez pas cette opportunité : inscrivez-vous dès maintenant pour faire partie des premiers à choisir votre futur appartement.

Autres logements T4 du programme "167 ARAGON"

Disponibilité Prix Genre Pièces Surface Étage
Voir
Disponible
510 000€ Appt. T4 87.55m2 8ème
DO NOT CLICK