Prix
359 000€
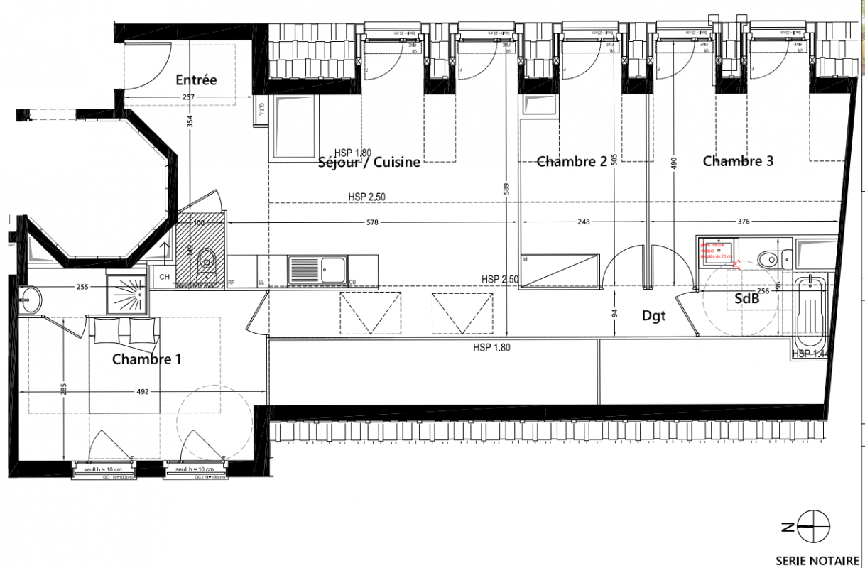
Type
Appt. au 2ème
Pièces
T4
Surface
80.53 m²
Exposition
-
Ville
Rambouillet (78120)
Livraison
1er trimestre 2025
Informations
01 81 80 39 10

Présentation du programme "Les Bastides"

Situées dans le quartier résidentiel Patenôtre Petit Parc, « Les Bastides » se dévoilent tel un petit trésor bien caché où appartements et maisons se côtoient harmonieusement dans un écrin de verdure. La résidence se compose de deux petits bâtiments et trois maisons de ville au charme authentique et à l'architecture classique .Ainsi, côté rue, s'insère délicatement dans le paysage environnant, une élégante bâtisse arborant des petites tuiles plates en toiture et parement de pierre type meulière ou enduit clair en façade. Pour un surplus d'intimité, trois maisons de ville avec 3 chambres, terrasse et jardin privatif, séparées par des haies vives, se déploient le long du coeur de l'ilot paysager. Plus en retrait et dissimulé au beau milieu de ce havre végétal, le deuxième bâtiment révèle des appartements au calme, déclinés du studio au 4 pièces familial dont la plupart bénéficient d'un jardin privé en rez-de-chaussée, de loggia aux étages supérieurs ou d'une belle terrasse en attique.

Autres logements T4 du programme "Les Bastides"

Disponibilité Prix Genre Pièces Surface Étage
Voir
Disponible
499 000€ Maison T4 95.47m2 0-RDC
DO NOT CLICK