Ce lot n’est plus disponible chez VIANOVA ou est vendu.

Vous pouvez revenir dans 24h pour vérifier le stock à jour ou contacter un conseiller Vianova pour vérifier le stock en direct.
Vous pouvez également continuer votre recherche sur notre site « ici ».

Prix
216 791€
Type
Appt. au 1er
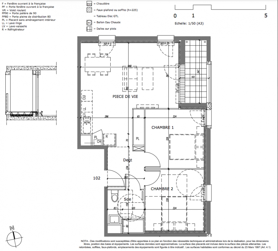
Pièces
T3
Surface
56.76 m²
Exposition
-
Ville
Caen (14000)
Livraison
3ème trimestre 2026
Informations
01 81 80 39 10

Présentation du programme "LES DUCS D'HARCOURT"

La résidence LES DUCS D'HARCOURT :
- 34 appartements du 2 au 4 pièces
- Terrasse ou jardin privatif
- A proximité de l'hypercentre de Caen et du périphérique
- Piste cyclable pour rejoindre le centre-ville

Une opportunité pour les investisseurs : marché locatif porteur, prix attractif
Et pour les primo-accédants : Prêt à Taux Zéro, TVA 5,5 %, aides de la Caen la mer

Autres logements T3 du programme "LES DUCS D'HARCOURT"

Pas de logements disponibles
DO NOT CLICK