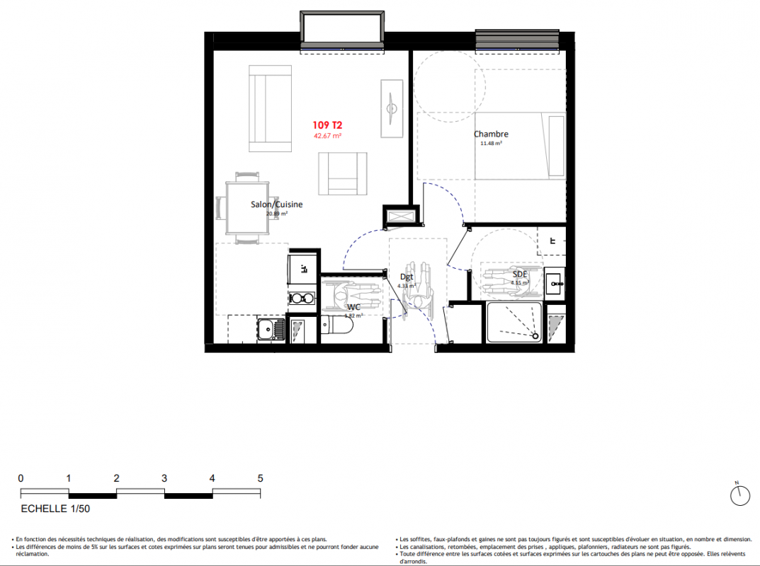
151 400€
Appt. au 1er
T2
42.67 m²
Nord
Avranches (50300)
2ème trimestre 2028
01 81 80 39 10
Présentation du programme "Programme neuf Avranches (50300)"
Investissez dans une nouvelle résidence intergénérationnelle à AVRANCHES et profitez d_un potentiel de rendement locatif allant jusqu_à 6,23 % ! Située à seulement 8 minutes* du centre-ville d_Avranches, notre nouvelle résidence intergénérationnelle propose un concept innovant, favorisant le vivre-ensemble. Conçue pour accueillir étudiants, jeunes actifs et retraités, elle offre un cadre de vie dynamique, solidaire et propice aux échanges. Son emplacement stratégique permet aux résidents de profiter d_un accès facilité aux commerces, services et infrastructures administratives de la ville.Avranches, ville animée toute l_année, propose de nombreuses activités culturelles et sportives, offrant des moments de partage et de convivialité. Son centre-ville dynamique et son réseau de bus performant permettent de rejoindre aisément les principaux pôles d_activité et les lieux culturels. De plus, la gare TER située à 14 min* à vélo permet de rejoindre Caen ou encore Rennes. Notre résidence propose des appartements fonctionnels, du studio au 3 pièces, pensés pour allier confort et praticité. Afin de renforcer le lien social et le bien-être des résidents, plusieurs espaces communs sont mis à disposition : une cafétéria conviviale, une salle de sport, une salle de coworking moderne et une laverie. Un local à vélos est également prévu pour encourager une mobilité douce et écologique. Enfin, des ateliers et animations encadrés par des professionnels sont proposés toute l_année. Accessibles à tous, ils encouragent les échanges, l_épanouissement et la découverte de nouvelles passions.Contactez-vite un de nos conseillers pour découvrir tous nos logements neufs à AVRANCHES !
Autres logements T2 du programme "Programme neuf Avranches (50300)"
| Disponibilité | Prix | No | Genre | Pièces | Surface | Étage | Disponibilité | Prix | ||
|---|---|---|---|---|---|---|---|---|---|---|
| Voir | Disponible | 147 600€ | A102 | Appt. | T2 | 41.78m2 | 1er | Disponible | 147 600€ | Voir |
| Voir | Disponible | 153 700€ | A103 | Appt. | T2 | 42.76m2 | 1er | Disponible | 153 700€ | Voir |
| Voir | Disponible | 156 300€ | A105 | Appt. | T2 | 44.81m2 | 1er | Disponible | 156 300€ | Voir |
| Voir | Disponible | 156 000€ | A106 | Appt. | T2 | 44.81m2 | 1er | Disponible | 156 000€ | Voir |
| Voir | Disponible | 156 600€ | A107 | Appt. | T2 | 44.81m2 | 1er | Disponible | 156 600€ | Voir |
| Voir | Disponible | 151 200€ | A110 | Appt. | T2 | 42.61m2 | 1er | Disponible | 151 200€ | Voir |
| Voir | Disponible | 151 200€ | A111 | Appt. | T2 | 42.61m2 | 1er | Disponible | 151 200€ | Voir |
| Voir | Disponible | 157 000€ | A112 | Appt. | T2 | 42.61m2 | 1er | Disponible | 157 000€ | Voir |
| Voir | Disponible | 157 400€ | A205 | Appt. | T2 | 44.81m2 | 2ème | Disponible | 157 400€ | Voir |
| Voir | Disponible | 157 400€ | A206 | Appt. | T2 | 44.81m2 | 2ème | Disponible | 157 400€ | Voir |
| Voir | Disponible | 157 400€ | A207 | Appt. | T2 | 44.81m2 | 2ème | Disponible | 157 400€ | Voir |
| Voir | Disponible | 153 200€ | A209 | Appt. | T2 | 42.67m2 | 2ème | Disponible | 153 200€ | Voir |
| Voir | Disponible | 153 100€ | A210 | Appt. | T2 | 42.61m2 | 2ème | Disponible | 153 100€ | Voir |
| Voir | Disponible | 153 100€ | A211 | Appt. | T2 | 42.61m2 | 2ème | Disponible | 153 100€ | Voir |
| Voir | Disponible | 146 600€ | A301 | Appt. | T2 | 41.5m2 | 3ème | Disponible | 146 600€ | Voir |
| Voir | Disponible | 134 900€ | A305 | Appt. | T2 | 37.11m2 | 3ème | Disponible | 134 900€ | Voir |
| Voir | Disponible | 149 000€ | A006 | Appt. | T2 | 43.39m2 | 0-RDC | Disponible | 149 000€ | Voir |