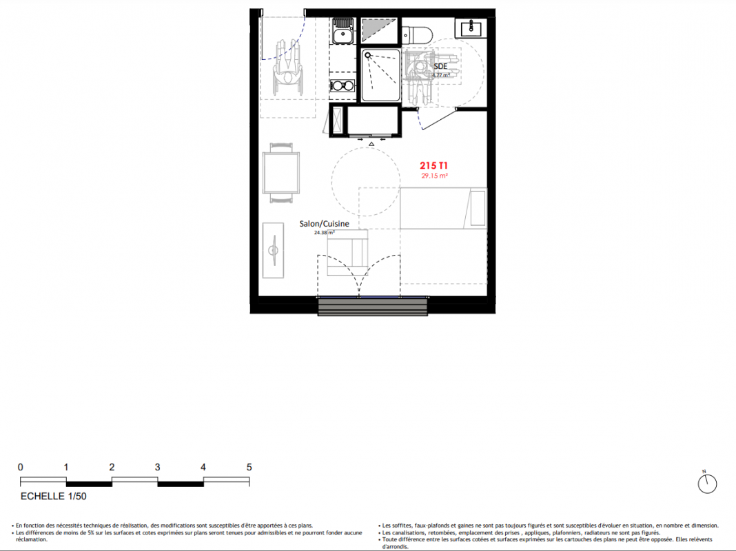
108 900€
Appt. au 2ème
Studio
29.15 m²
Sud
Avranches (50300)
4ème trimestre 2027
01 81 80 39 10
Présentation du programme "Programme neuf Avranches (50300)"
Investissez dans une nouvelle résidence intergénérationnelle à AVRANCHES et profitez d_un potentiel de rendement locatif allant jusqu_à 6,23 % ! Située à seulement 8 minutes* du centre-ville d_Avranches, notre nouvelle résidence intergénérationnelle propose un concept innovant, favorisant le vivre-ensemble. Conçue pour accueillir étudiants, jeunes actifs et retraités, elle offre un cadre de vie dynamique, solidaire et propice aux échanges. Son emplacement stratégique permet aux résidents de profiter d_un accès facilité aux commerces, services et infrastructures administratives de la ville.Avranches, ville animée toute l_année, propose de nombreuses activités culturelles et sportives, offrant des moments de partage et de convivialité. Son centre-ville dynamique et son réseau de bus performant permettent de rejoindre aisément les principaux pôles d_activité et les lieux culturels. De plus, la gare TER située à 14 min* à vélo permet de rejoindre Caen ou encore Rennes. Notre résidence propose des appartements fonctionnels, du studio au 3 pièces, pensés pour allier confort et praticité. Afin de renforcer le lien social et le bien-être des résidents, plusieurs espaces communs sont mis à disposition : une cafétéria conviviale, une salle de sport, une salle de coworking moderne et une laverie. Un local à vélos est également prévu pour encourager une mobilité douce et écologique. Enfin, des ateliers et animations encadrés par des professionnels sont proposés toute l_année. Accessibles à tous, ils encouragent les échanges, l_épanouissement et la découverte de nouvelles passions.Contactez-vite un de nos conseillers pour découvrir tous nos logements neufs à AVRANCHES !
Autres logements Studio du programme "Programme neuf Avranches (50300)"
| Disponibilité | Prix | No | Genre | Pièces | Surface | Étage | Disponibilité | Prix | ||
|---|---|---|---|---|---|---|---|---|---|---|
| Voir | Disponible | 113 500€ | A108 | Appt. | Studio | 29.3m2 | 1er | Disponible | 113 500€ | Voir |
| Voir | Disponible | 107 000€ | A113 | Appt. | Studio | 29.15m2 | 1er | Disponible | 107 000€ | Voir |
| Voir | Disponible | 107 000€ | A114 | Appt. | Studio | 29.15m2 | 1er | Disponible | 107 000€ | Voir |
| Voir | Disponible | 107 000€ | A115 | Appt. | Studio | 29.15m2 | 1er | Disponible | 107 000€ | Voir |
| Voir | Disponible | 103 800€ | A116 | Appt. | Studio | 28.05m2 | 1er | Disponible | 103 800€ | Voir |
| Voir | Disponible | 107 000€ | A117 | Appt. | Studio | 29.15m2 | 1er | Disponible | 107 000€ | Voir |
| Voir | Disponible | 107 000€ | A118 | Appt. | Studio | 29.15m2 | 1er | Disponible | 107 000€ | Voir |
| Voir | Disponible | 107 000€ | A119 | Appt. | Studio | 29.15m2 | 1er | Disponible | 107 000€ | Voir |
| Voir | Disponible | 108 900€ | A213 | Appt. | Studio | 29.15m2 | 2ème | Disponible | 108 900€ | Voir |
| Voir | Disponible | 108 900€ | A214 | Appt. | Studio | 29.15m2 | 2ème | Disponible | 108 900€ | Voir |
| Voir | Disponible | 110 000€ | A216 | Appt. | Studio | 28.05m2 | 2ème | Disponible | 110 000€ | Voir |
| Voir | Disponible | 108 900€ | A217 | Appt. | Studio | 29.15m2 | 2ème | Disponible | 108 900€ | Voir |
| Voir | Disponible | 108 900€ | A218 | Appt. | Studio | 29.15m2 | 2ème | Disponible | 108 900€ | Voir |
| Voir | Disponible | 108 900€ | A219 | Appt. | Studio | 29.15m2 | 2ème | Disponible | 108 900€ | Voir |
| Voir | Disponible | 130 900€ | A304 | Appt. | Studio | 35.97m2 | 3ème | Disponible | 130 900€ | Voir |
| Voir | Disponible | 96 900€ | A314 | Appt. | Studio | 24.11m2 | 3ème | Disponible | 96 900€ | Voir |
| Voir | Disponible | 96 900€ | A315 | Appt. | Studio | 24.11m2 | 3ème | Disponible | 96 900€ | Voir |
| Voir | Disponible | 96 900€ | A318 | Appt. | Studio | 24.11m2 | 3ème | Disponible | 96 900€ | Voir |
| Voir | Disponible | 96 900€ | A319 | Appt. | Studio | 24.11m2 | 3ème | Disponible | 96 900€ | Voir |
| Voir | Disponible | 95 000€ | A007 | Appt. | Studio | 26.08m2 | 0-RDC | Disponible | 95 000€ | Voir |