186 000€ (TVA 20%)
170 500€ (TVA 10%)
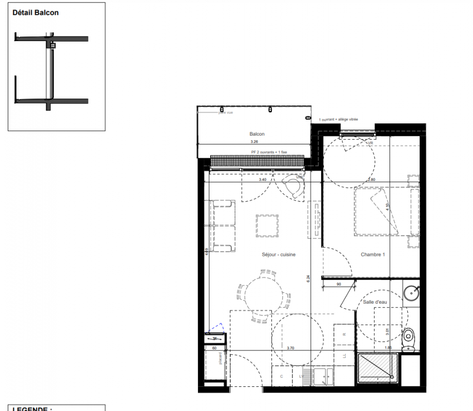
Appt. au 2ème
T2
40 m²
Nord-Est
Mont-Saint-Aignan (76130)
3ème trimestre 2028
01 81 80 39 10
Présentation du programme "Résidence Saint-Exupéry"
À seulement 10 mn du centre-ville de Rouen, découvrez notre résidence d'exception dans une commune résidentielle prisée alliant dynamisme et douceur de vivre, réputée pour son environnement verdoyant et sa qualité de vie. Découvrez la Résidence Saint-Exupéry, idéalement située pour simplifier votre quotidien : arrêt de bus au pied de la résidence, à 2 pas de la Place Colbert où vous trouverez tous les commerces et services, ainsi que du pôle universitaire. La résidence propose 36 appartements neufs, allant du 2 au 4 pièces, tous conçus pour offrir des espaces spacieux et lumineux. Chaque logement est prolongé d'un extérieur privatif : balcon, terrasse ou terrasse en attique. La résidence offre des prestations de qualités : ascenseur, visiophone, hall d'entrée sécurisé, parkings privatifs.. Que vous soyez jeune actif, une famille ou retraité, vous trouverez l'appartement qui correspond à vos besoins et attentes. Un cadre de vie idéal et parfait, pour y vivre ou investir. Renseignez-vous dès maintenant et soyez les premiers à choisir votre appartement ! Pour toutes informations complémentaires, prenez contact avec nous !
Autres logements T2 du programme "Résidence Saint-Exupéry"
| Disponibilité | Prix | No | Genre | Pièces | Surface | Étage | Disponibilité | Prix | ||
|---|---|---|---|---|---|---|---|---|---|---|
| Voir | Disponible | 205 000€ | 3304 | Appt. | T2 | 44m2 | 3ème | Disponible | 205 000€ | Voir |
| Voir | Disponible | 192 000€ | 3306 | Appt. | T2 | 40m2 | 3ème | Disponible | 192 000€ | Voir |
| Voir | Disponible | 192 000€ | 3305 | Appt. | T2 | 40m2 | 3ème | Disponible | 192 000€ | Voir |
| Voir | Disponible | 205 000€ | 3307 | Appt. | T2 | 44m2 | 3ème | Disponible | 205 000€ | Voir |
| Voir | Disponible | 198 000€ | 3204 | Appt. | T2 | 44m2 | 2ème | Disponible | 198 000€ | Voir |
| Voir | Disponible | 198 000€ | 3207 | Appt. | T2 | 44m2 | 2ème | Disponible | 198 000€ | Voir |
| Voir | Disponible | 186 000€ | 3205 | Appt. | T2 | 40m2 | 2ème | Disponible | 186 000€ | Voir |
| Voir | Disponible | 178 000€ | 3003 | Appt. | T2 | 40m2 | 0-RDC | Disponible | 178 000€ | Voir |
| Voir | Disponible | 190 000€ | 3004 | Appt. | T2 | 44m2 | 0-RDC | Disponible | 190 000€ | Voir |