449 900€
Maison au 0-RDC
T6
140.1 m²
-
La Jarrie (17220)
1er trimestre 2027
01 81 80 39 10
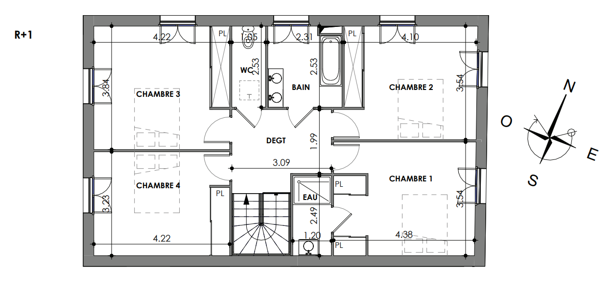
Présentation du programme "Le Clos du Chemin Vert"
NOUVEAU ZONAGE PTZ POUR LA JARRIE : PASSAGE EN ZONE B1
VISITEZ NOTRE MAISON TÉMOIN DÉCORÉE POUR VOUS SENTIR DÉJÀ CHEZ VOUS !
Découvrez « Le Clos du Chemin Vert », réalisation composée d’Appartements-Jardins 2 pièces avec jardin ou balcon, de Villas-Jardins 3 ou 4 pièces duplex avec jardin, d’une Villa-Jardins 4 pièces de plain-pied avec jardin, de maisons 5 pièces avec jardin et garage attenant ; ainsi que d'appartements 5 pièces avec terrasse offrant de belles prestations. Chaque logement dispose de places de stationnement : 1 place pour les 2 pièces et 2 places pour les 3 pièces et plus. Fort de son savoir-faire de plus de 50 ans en immobilier résidentiel, European Homes réinvente une fois de plus la qualité de vie à La Jarrie avec son concept unique des VILLAS-JARDINS et APPARTEMENTS-JARDINS rendant possible le rêve d’une maison agrémentée de son jardin privatif engazonné. Accessibles à tous, nos habitations sont conçues pour répondre à toutes les préférences de vie. Situé en cœur de ville de La Jarrie et à 9 min** en TER ou 10 min** en voiture de La Rochelle, la résidence procure à ses occupants un confort absolu où toutes les commodités se trouvent à portée de main : à moins de 3 min** à pied des écoles, mairie et commerces, à proximité des axes routiers et de la départementale 939**, proche des transports en commun (bus Yelo) **.
Sa proximité avec La Rochelle et de la plage Angoulins et Châtelaillon-Plage à 14 min** sont également des atouts attractifs. Que ce soit pour mener une carrière professionnelle dans une région paisible, fonder une famille tout en étant proche de toutes les commodités, seul ou en couple, à chacun ses perspectives de bonheur ! Profitez de la qualité de vie d’une ville accueillante et festive qui s’attarde à préserver son patrimoine naturel. Prenez rendez-vous dès aujourd'hui pour visiter la maison témoin décorée (ouverte 5 jours sur 7) et vous projeter dans votre futur chez-vous à La Jarrie avec European Homes !
*voir conditions sur le site e-h.fr
**Source Google Maps


