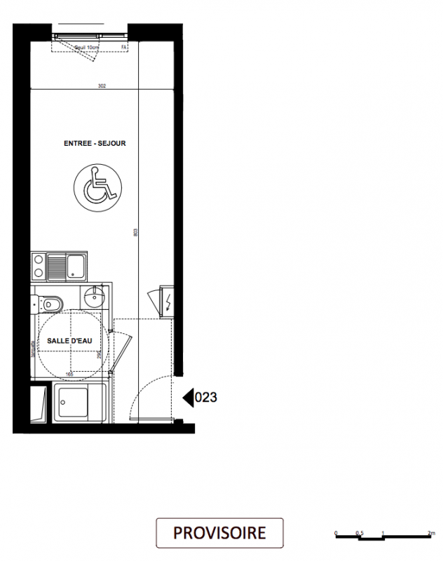
122 500€
Appt. au 0-RDC
Studio
23.31 m²
Sud
Niort (79000)
4ème trimestre 2027
01 81 80 39 10
Présentation du programme "Programme neuf Niort (79000)"
NOUVEAU à NIORT ! Investissez dans notre nouvelle résidence pour étudiants et jeunes actifs à 5 minutes du pôle universitaire ! Profitez d'une rentabilité locative jusqu'à 6,92 % et de notre offre exclusive du moment !Cette nouvelle résidence propose des studios fonctionnels, dont certains avec balcon, conçus pour offrir un cadre de vie confortable et adapté aux besoins des étudiants et jeunes actifs. Chaque logement bénéficie de prestations soignées, avec un local à vélos et des parkings en sous-sol pour la majorité des appartements.Pour favoriser le bien-être et les échanges entre résidents, des espaces communs sont mis à disposition : salle de sport, laverie et espace de coworking, accessibles librement au quotidien. D_architecture sobre et contemporaine, la résidence s_intègre harmonieusement dans un environnement paisible et verdoyant.Située dans un quartier résidentiel calme, elle se trouve à seulement 5 minutes à vélo du pôle universitaire, fait face à un parc boisé et se situe à proximité des bords de la Sèvre Niortaise.Commerces, services et équipements sont accessibles à pied ou à quelques minutes. Contactez vite un de nos conseillers pour découvrir tous nos appartements neufs NIORT et pour concrétiser votre projet d'investissement locatif !
Autres logements Studio du programme "Programme neuf Niort (79000)"
| Disponibilité | Prix | No | Genre | Pièces | Surface | Étage | Disponibilité | Prix | ||
|---|---|---|---|---|---|---|---|---|---|---|
| Voir | Disponible | 103 800€ | B033 | Appt. | Studio | 18.89m2 | 0-RDC | Disponible | 103 800€ | Voir |
| Voir | Disponible | 103 800€ | B035 | Appt. | Studio | 18.89m2 | 0-RDC | Disponible | 103 800€ | Voir |
| Voir | Disponible | 103 800€ | B036 | Appt. | Studio | 18.89m2 | 0-RDC | Disponible | 103 800€ | Voir |
| Voir | Disponible | 101 700€ | B038 | Appt. | Studio | 18.78m2 | 0-RDC | Disponible | 101 700€ | Voir |
| Voir | Disponible | 101 700€ | B042 | Appt. | Studio | 18.95m2 | 0-RDC | Disponible | 101 700€ | Voir |
| Voir | Disponible | 98 400€ | B044 | Appt. | Studio | 18.89m2 | 0-RDC | Disponible | 98 400€ | Voir |
| Voir | Disponible | 98 400€ | B046 | Appt. | Studio | 18.89m2 | 0-RDC | Disponible | 98 400€ | Voir |
| Voir | Disponible | 102 900€ | B133 | Appt. | Studio | 18.89m2 | 1er | Disponible | 102 900€ | Voir |
| Voir | Disponible | 102 900€ | B135 | Appt. | Studio | 18.89m2 | 1er | Disponible | 102 900€ | Voir |
| Voir | Disponible | 104 800€ | B140 | Appt. | Studio | 18.89m2 | 1er | Disponible | 104 800€ | Voir |
| Voir | Disponible | 104 800€ | B141 | Appt. | Studio | 18.89m2 | 1er | Disponible | 104 800€ | Voir |
| Voir | Disponible | 104 800€ | B142 | Appt. | Studio | 18.89m2 | 1er | Disponible | 104 800€ | Voir |
| Voir | Disponible | 104 400€ | B143 | Appt. | Studio | 18.89m2 | 1er | Disponible | 104 400€ | Voir |
| Voir | Disponible | 104 800€ | B145 | Appt. | Studio | 18.89m2 | 1er | Disponible | 104 800€ | Voir |
| Voir | Disponible | 100 400€ | B150 | Appt. | Studio | 18.89m2 | 1er | Disponible | 100 400€ | Voir |
| Voir | Disponible | 100 400€ | B151 | Appt. | Studio | 18.89m2 | 1er | Disponible | 100 400€ | Voir |
| Voir | Disponible | 98 300€ | B204 | Appt. | Studio | 18.89m2 | 2ème | Disponible | 98 300€ | Voir |
| Voir | Disponible | 104 900€ | B233 | Appt. | Studio | 18.89m2 | 2ème | Disponible | 104 900€ | Voir |
| Voir | Disponible | 107 800€ | B234 | Appt. | Studio | 18.89m2 | 2ème | Disponible | 107 800€ | Voir |
| Voir | Disponible | 104 900€ | B236 | Appt. | Studio | 18.89m2 | 2ème | Disponible | 104 900€ | Voir |
| Voir | Disponible | 107 800€ | B238 | Appt. | Studio | 18.72m2 | 2ème | Disponible | 107 800€ | Voir |
| Voir | Disponible | 106 900€ | B240 | Appt. | Studio | 18.89m2 | 2ème | Disponible | 106 900€ | Voir |
| Voir | Disponible | 103 900€ | B241 | Appt. | Studio | 18.89m2 | 2ème | Disponible | 103 900€ | Voir |
| Voir | Disponible | 106 900€ | B242 | Appt. | Studio | 18.89m2 | 2ème | Disponible | 106 900€ | Voir |
| Voir | Disponible | 103 900€ | B243 | Appt. | Studio | 18.89m2 | 2ème | Disponible | 103 900€ | Voir |
| Voir | Disponible | 103 900€ | B244 | Appt. | Studio | 18.89m2 | 2ème | Disponible | 103 900€ | Voir |
| Voir | Disponible | 106 900€ | B245 | Appt. | Studio | 18.89m2 | 2ème | Disponible | 106 900€ | Voir |
| Voir | Disponible | 102 300€ | B250 | Appt. | Studio | 18.89m2 | 2ème | Disponible | 102 300€ | Voir |
| Voir | Disponible | 119 500€ | B010 | Appt. | Studio | 24.79m2 | 0-RDC | Disponible | 119 500€ | Voir |
| Voir | Disponible | 103 900€ | B013 | Appt. | Studio | 18.89m2 | 0-RDC | Disponible | 103 900€ | Voir |
| Voir | Disponible | 118 800€ | B022 | Appt. | Studio | 21.39m2 | 0-RDC | Disponible | 118 800€ | Voir |
| Voir | Disponible | 108 800€ | B027 | Appt. | Studio | 18.89m2 | 0-RDC | Disponible | 108 800€ | Voir |
| Voir | Disponible | 108 800€ | B028 | Appt. | Studio | 18.89m2 | 0-RDC | Disponible | 108 800€ | Voir |
| Voir | Disponible | 106 300€ | B032 | Appt. | Studio | 18.89m2 | 0-RDC | Disponible | 106 300€ | Voir |
| Voir | Disponible | 121 800€ | B110 | Appt. | Studio | 24.79m2 | 1er | Disponible | 121 800€ | Voir |
| Voir | Disponible | 103 800€ | B112 | Appt. | Studio | 18.89m2 | 1er | Disponible | 103 800€ | Voir |
| Voir | Disponible | 103 800€ | B115 | Appt. | Studio | 18.95m2 | 1er | Disponible | 103 800€ | Voir |
| Voir | Disponible | 105 800€ | B126 | Appt. | Studio | 18.89m2 | 1er | Disponible | 105 800€ | Voir |
| Voir | Disponible | 105 800€ | B128 | Appt. | Studio | 18.89m2 | 1er | Disponible | 105 800€ | Voir |
| Voir | Disponible | 102 900€ | B129 | Appt. | Studio | 18.89m2 | 1er | Disponible | 102 900€ | Voir |
| Voir | Disponible | 105 800€ | B130 | Appt. | Studio | 18.89m2 | 1er | Disponible | 105 800€ | Voir |
| Voir | Disponible | 105 800€ | B132 | Appt. | Studio | 18.89m2 | 1er | Disponible | 105 800€ | Voir |
| Voir | Disponible | 127 000€ | B210 | Appt. | Studio | 24.79m2 | 2ème | Disponible | 127 000€ | Voir |
| Voir | Disponible | 105 400€ | B211 | Appt. | Studio | 26.58m2 | 2ème | Disponible | 105 400€ | Voir |
| Voir | Disponible | 102 900€ | B212 | Appt. | Studio | 18.89m2 | 2ème | Disponible | 102 900€ | Voir |
| Voir | Disponible | 102 900€ | B213 | Appt. | Studio | 18.89m2 | 2ème | Disponible | 102 900€ | Voir |
| Voir | Disponible | 105 800€ | B214 | Appt. | Studio | 18.89m2 | 2ème | Disponible | 105 800€ | Voir |
| Voir | Disponible | 102 800€ | B216 | Appt. | Studio | 18.95m2 | 2ème | Disponible | 102 800€ | Voir |
| Voir | Disponible | 102 900€ | B219 | Appt. | Studio | 18.89m2 | 2ème | Disponible | 102 900€ | Voir |
| Voir | Disponible | 102 300€ | B220 | Appt. | Studio | 18.89m2 | 2ème | Disponible | 102 300€ | Voir |
| Voir | Disponible | 123 000€ | B222 | Appt. | Studio | 21.45m2 | 2ème | Disponible | 123 000€ | Voir |
| Voir | Disponible | 128 300€ | B223 | Appt. | Studio | 23.29m2 | 2ème | Disponible | 128 300€ | Voir |
| Voir | Disponible | 106 800€ | B224 | Appt. | Studio | 18.89m2 | 2ème | Disponible | 106 800€ | Voir |
| Voir | Disponible | 104 900€ | B225 | Appt. | Studio | 18.89m2 | 2ème | Disponible | 104 900€ | Voir |
| Voir | Disponible | 107 800€ | B226 | Appt. | Studio | 18.89m2 | 2ème | Disponible | 107 800€ | Voir |
| Voir | Optionné | 112 400€ | B227 | Appt. | Studio | 18.89m2 | 2ème | Optionné Mais pas encore vendu 😉 | 112 400€ | Voir |
| Voir | Disponible | 107 800€ | B228 | Appt. | Studio | 18.89m2 | 2ème | Disponible | 107 800€ | Voir |
| Voir | Disponible | 107 800€ | B230 | Appt. | Studio | 18.89m2 | 2ème | Disponible | 107 800€ | Voir |
| Voir | Disponible | 104 900€ | B231 | Appt. | Studio | 18.89m2 | 2ème | Disponible | 104 900€ | Voir |
| Voir | Disponible | 107 800€ | B232 | Appt. | Studio | 18.89m2 | 2ème | Disponible | 107 800€ | Voir |
| Voir | Disponible | 102 300€ | B251 | Appt. | Studio | 18.89m2 | 2ème | Disponible | 102 300€ | Voir |
| Voir | Disponible | 113 800€ | B301 | Appt. | Studio | 18.8m2 | 3ème | Disponible | 113 800€ | Voir |
| Voir | Optionné | 110 300€ | B306 | Appt. | Studio | 18.8m2 | 3ème | Optionné Mais pas encore vendu 😉 | 110 300€ | Voir |
| Voir | Disponible | 101 300€ | B011 | Appt. | Studio | 26.58m2 Le bon plan | 0-RDC | Disponible | 101 300€ | Voir |
| Voir | Disponible | 101 300€ | B012 | Appt. | Studio | 18.89m2 | 0-RDC | Disponible | 101 300€ | Voir |
| Voir | Disponible | 101 300€ | B014 | Appt. | Studio | 18.89m2 | 0-RDC | Disponible | 101 300€ | Voir |
| Voir | Disponible | 101 300€ | B015 | Appt. | Studio | 18.95m2 | 0-RDC | Disponible | 101 300€ | Voir |
| Voir | Disponible | 98 400€ | B020 | Appt. | Studio | 18.89m2 | 0-RDC | Disponible | 98 400€ | Voir |
| Voir | Disponible | 98 400€ | B021 | Appt. | Studio | 18.89m2 | 0-RDC | Disponible | 98 400€ | Voir |
| Voir | Disponible | 102 700€ | B024 | Appt. | Studio | 18.89m2 | 0-RDC | Disponible | 102 700€ | Voir |
| Voir | Disponible | 103 800€ | B025 | Appt. | Studio | 18.89m2 | 0-RDC | Disponible | 103 800€ | Voir |
| Voir | Disponible | 103 800€ | B026 | Appt. | Studio | 18.89m2 | 0-RDC | Disponible | 103 800€ | Voir |
| Voir | Disponible | 103 800€ | B029 | Appt. | Studio | 18.89m2 | 0-RDC | Disponible | 103 800€ | Voir |
| Voir | Disponible | 103 800€ | B030 | Appt. | Studio | 18.89m2 | 0-RDC | Disponible | 103 800€ | Voir |
| Voir | Disponible | 103 800€ | B031 | Appt. | Studio | 18.89m2 | 0-RDC | Disponible | 103 800€ | Voir |
| Voir | Disponible | 103 000€ | B111 | Appt. | Studio | 26.58m2 | 1er | Disponible | 103 000€ | Voir |
| Voir | Disponible | 103 400€ | B114 | Appt. | Studio | 18.89m2 | 1er | Disponible | 103 400€ | Voir |
| Voir | Disponible | 100 400€ | B118 | Appt. | Studio | 18.89m2 | 1er | Disponible | 100 400€ | Voir |
| Voir | Disponible | 100 400€ | B121 | Appt. | Studio | 18.89m2 | 1er | Disponible | 100 400€ | Voir |
| Voir | Disponible | 105 400€ | B125 | Appt. | Studio | 18.89m2 | 1er | Disponible | 105 400€ | Voir |
| Voir | Disponible | 105 400€ | B127 | Appt. | Studio | 18.89m2 | 1er | Disponible | 105 400€ | Voir |
| Voir | Disponible | 98 300€ | B206 | Appt. | Studio | 18.89m2 | 2ème | Disponible | 98 300€ | Voir |
| Voir | Disponible | 98 300€ | B208 | Appt. | Studio | 18.89m2 | 2ème | Disponible | 98 300€ | Voir |
| Voir | Disponible | 98 300€ | B209 | Appt. | Studio | 18.89m2 | 2ème | Disponible | 98 300€ | Voir |
| Voir | Disponible | 102 300€ | B218 | Appt. | Studio | 18.89m2 | 2ème | Disponible | 102 300€ | Voir |