Prix
540 900€
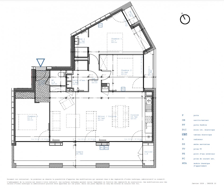
Type
Appt. au 2ème
Pièces
T4
Surface
96.4 m²
Exposition
-
Ville
Bordeaux (33000)
Livraison
4ème trimestre 2023
Informations
01 81 80 39 10

Présentation du programme "INOUI"

INOUI est un programme de 27 logements situés dans le quartier de La Bastide à Bordeaux. Il offre un cadre de vie doux et rare. INOUI est constitué de 20 appartements du T1 au T4, de 4 échoppes capables, et de 3 maisons en T3 avec extérieurs. Des logements vastes, au sein d’une résidence participative. 3 espaces de partage : jardin commun, local d’activité, et terrasse commune et partagée. INOUI s’associe à ENGIE en développant VERTUOZ Communauté, qui permet le suivi de la consommation d'énergie, d’organiser des évènements et d’échanger des services entre voisins.Unique à Bordeaux ! Contactez-nous au 05 46 448 448.Découvrir le programme : https://www.eden-promotion.fr/programmes-immobiliers/immobilier-neuf-bordeaux/

Autres logements T4 du programme "INOUI"

Disponibilité Prix Genre Pièces Surface Étage
Voir
Disponible
537 000€ Appt. T4 96.4m2 1er
Voir
Disponible
562 100€ Appt. T4 94.1m2 0-RDC
DO NOT CLICK