102 000€
Appt. au 2ème
Studio
18.78 m²
Ouest
Alès (30100)
3ème trimestre 2027
01 81 80 39 10
Présentation du programme "Programme neuf Alès (30100)"
Démarrage des travaux à ALES ! Investissez dans notre nouvelle résidence étudiante et bénéficiez des avantages du LMNP avec une rentabilité jusqu'à 6%* par an ! Idéalement située à quelques minutes à pied de l'École des Mines d'Alès, Urbaneo – Les Mines offre un cadre de vie adapté aux besoins des étudiants et des jeunes actifs, alliant confort, sécurité et convivialité. Notre nouvelle résidence est à proximité immédiate d’une supérette et d’un primeur accessibles directement à pied, ainsi que de la gare d'Alès, située à seulement 5 min* à vélo, permettant des déplacements rapides et pratiques. Les transports en commun desservent efficacement les différents quartiers de la ville avec notamment de nombreux arrêts de bus dans les alentours, garantissant un accès facile aux établissements scolaires et universitaires ainsi qu'aux espaces de loisirs.La résidence propose des appartements fonctionnels allant du studio au 2 pièces, dont certains disposent d'un balcon. Conçus pour optimiser l'espace de vie, nos logements offrent un cadre confortable et pratique, parfaitement adapté aux exigences des étudiants. Pour assurer bien-être et sérénité, la résidence est entièrement fermée et sécurisée.Urbaneo met à disposition de ses résidents un gardien assurant une présence rassurante, une laverie en libre-service, un local à vélos sécurisé, une salle de coworking propice au travail, un espace arboré pour se détendre, ainsi qu'une terrasse commune pour partager des moments conviviaux.Contactez-vite un de nos conseillers pour découvrir tous nos logements neufs à ALES et concrétiser votre projet d'investissement locatif!
Autres logements Studio du programme "Programme neuf Alès (30100)"
| Disponibilité | Prix | No | Genre | Pièces | Surface | Étage | Disponibilité | Prix | ||
|---|---|---|---|---|---|---|---|---|---|---|
| Voir | Disponible | 101 200€ | A107 | Appt. | Studio | 18.78m2 | 1er | Disponible | 101 200€ | Voir |
| Voir | Disponible | 105 500€ | A110 | Appt. | Studio | 18.78m2 | 1er | Disponible | 105 500€ | Voir |
| Voir | Disponible | 122 300€ | A125 | Appt. | Studio | 24.02m2 | 1er | Disponible | 122 300€ | Voir |
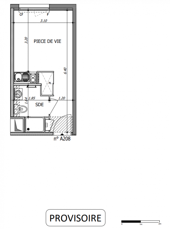
| Voir | Disponible | 101 900€ | A202 | Appt. | Studio | 18.78m2 | 2ème | Disponible | 101 900€ | Voir |
| Voir | Disponible | 112 500€ | B009 | Appt. | Studio | 20.93m2 | 0-RDC | Disponible | 112 500€ | Voir |
| Voir | Disponible | 99 900€ | B010 | Appt. | Studio | 20.93m2 | 0-RDC | Disponible | 99 900€ | Voir |
| Voir | Disponible | 99 500€ | B019 | Appt. | Studio | 18.78m2 | 0-RDC | Disponible | 99 500€ | Voir |
| Voir | Disponible | 989 000€ | B022 | Appt. | Studio | 18.72m2 | 0-RDC | Disponible | 989 000€ | Voir |
| Voir | Disponible | 119 200€ | B124 | Appt. | Studio | 27.93m2 | 1er | Disponible | 119 200€ | Voir |
| Voir | Disponible | 122 300€ | B126 | Appt. | Studio | 21.04m2 | 1er | Disponible | 122 300€ | Voir |
| Voir | Disponible | 114 500€ | BR01 | Appt. | Studio | 26.79m2 | 0-RDC | Disponible | 114 500€ | Voir |
| Voir | Disponible | 107 200€ | BR06 | Appt. | Studio | 18.78m2 | 0-RDC | Disponible | 107 200€ | Voir |
| Voir | Disponible | 99 400€ | BR22 | Appt. | Studio | 18.72m2 | 0-RDC | Disponible | 99 400€ | Voir |
| Voir | Disponible | 116 400€ | BR26 | Appt. | Studio | 27.93m2 | 0-RDC | Disponible | 116 400€ | Voir |
| Voir | Disponible | 99 800€ | A008 | Appt. | Studio | 18.78m2 | 0-RDC | Disponible | 99 800€ | Voir |
| Voir | Disponible | 116 300€ | A116 | Appt. | Studio | 23.53m2 | 1er | Disponible | 116 300€ | Voir |
| Voir | Disponible | 107 200€ | A221 | Appt. | Studio | 18.78m2 | 2ème | Disponible | 107 200€ | Voir |
| Voir | Disponible | 126 200€ | A225 | Appt. | Studio | 24.02m2 | 2ème | Disponible | 126 200€ | Voir |
| Voir | Disponible | 96 800€ | A002 | Appt. | Studio | 18.78m2 | 0-RDC | Disponible | 96 800€ | Voir |
| Voir | Disponible | 99 900€ | A017 | Appt. | Studio | 18.78m2 | 0-RDC | Disponible | 99 900€ | Voir |
| Voir | Disponible | 106 200€ | A118 | Appt. | Studio | 18.78m2 | 1er | Disponible | 106 200€ | Voir |
| Voir | Disponible | 107 700€ | B001 | Appt. | Studio | 21.04m2 | 0-RDC | Disponible | 107 700€ | Voir |
| Voir | Disponible | 99 900€ | BR05 | Appt. | Studio | 18.78m2 | 0-RDC | Disponible | 99 900€ | Voir |
| Voir | Disponible | 105 200€ | A011B | Appt. | Studio | 17.95m2 | 0-RDC | Disponible | 105 200€ | Voir |
| Voir | Disponible | 105 200€ | A111A | Appt. | Studio | 17.95m2 | 1er | Disponible | 105 200€ | Voir |
| Voir | Disponible | 116 000€ | A111B | Appt. | Studio | 20.53m2 | 1er | Disponible | 116 000€ | Voir |
| Voir | Disponible | 122 400€ | A112A | Appt. | Studio | 20.53m2 | 1er | Disponible | 122 400€ | Voir |
| Voir | Disponible | 106 200€ | A112B | Appt. | Studio | 17.95m2 | 1er | Disponible | 106 200€ | Voir |
| Voir | Disponible | 106 300€ | A124A | Appt. | Studio | 18.78m2 | 1er | Disponible | 106 300€ | Voir |
| Voir | Disponible | 122 400€ | A124B | Appt. | Studio | 25.17m2 | 1er | Disponible | 122 400€ | Voir |
| Voir | Disponible | 107 400€ | A211A | Appt. | Studio | 17.95m2 | 2ème | Disponible | 107 400€ | Voir |
| Voir | Disponible | 122 400€ | A211B | Appt. | Studio | 20.53m2 | 2ème | Disponible | 122 400€ | Voir |
| Voir | Disponible | 122 400€ | A212A | Appt. | Studio | 20.53m2 | 2ème | Disponible | 122 400€ | Voir |
| Voir | Disponible | 107 400€ | A212B | Appt. | Studio | 17.95m2 | 2ème | Disponible | 107 400€ | Voir |
| Voir | Disponible | 107 400€ | A224A | Appt. | Studio | 18.78m2 | 2ème | Disponible | 107 400€ | Voir |
| Voir | Disponible | 127 800€ | A224B | Appt. | Studio | 25.17m2 | 2ème | Disponible | 127 800€ | Voir |
| Voir | Disponible | 119 700€ | A011A | Appt. | Studio | 20.51m2 | 0-RDC | Disponible | 119 700€ | Voir |