360 000€
Appt. au 0-RDC
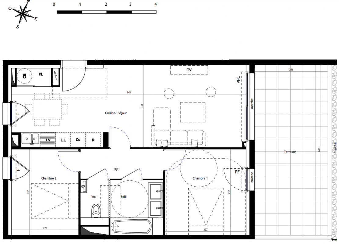
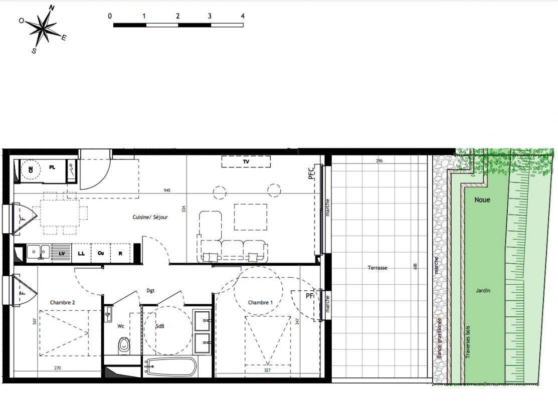
T3
62 m²
Est
Le Grau-du-Roi (30240)
4ème trimestre 2026
01 81 80 39 10
Présentation du programme "PATIO NEMA"
Dans une charmante impasse d’un secteur résidentiel prisé , découvrez « PATIO NEMA », notre nouvelle adresse d’exception. Située à seulement à 250 mètres de la plage, la résidence clôturée et sécurisée offre un cadre de vie remarquable avec ses espaces paysagers soigneusement aménagés et agrémentés d’essences méditerranéennes. Cette réalisation intimiste de deux étages seulement dévoile des appartements neufs aux volumes généreux, déclinés du 2 au 4 pièces duplex. Tous s’ouvrent sur des jardins privatifs ou de larges terrasses, dont 3 appartements premium avec rooftop et piscine privée.
À quelques minutes à pied des commerces et des services du quotidien, la résidence s'implante à moins de 6 minutes en voiture de la gare TER de Grau-du-Roi et des bus 132 et 606 reliant Nîmes et Montpellier, et à moins de 25 minutes de l’autoroute A9, de la gare TGV Montpellier Sud de France et de l’aéroport Montpellier Méditerranée.
Enfin, « La Marina », premier port de plaisance avec des places à flots est seulement à 4 minutes en voiture. La magnifique plage de L’Espiquette, un lieu naturel et sauvage, à 12 minutes en voiture, saura séduire vos investisseurs ! Proximité avec La Grande Motte à 12 minutes en voiture, la métropole de Montpellier à 40 minutes et Nîmes à moins d’1 heure, relient le projet aux villes dynamiques.
Autres logements T3 du programme "PATIO NEMA"
| Disponibilité | Prix | No | Genre | Pièces | Surface | Étage | Disponibilité | Prix | ||
|---|---|---|---|---|---|---|---|---|---|---|
| Voir | Disponible | 420 000€ | 203 | Appt. | T3 | 62.6m2 | 2ème | Disponible | 420 000€ | Voir |
| Voir | Disponible | 349 000€ | 105 | Appt. | T3 | 62.6m2 | 1er | Disponible | 349 000€ | Voir |
| Voir | Optionné | 430 000€ | 107 | Appt. | T3 | 64m2 | 1er | Optionné Mais pas encore vendu 😉 | 430 000€ | Voir |

