Prix
1 100 000€
Type
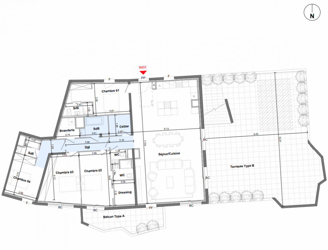
Appt. au 6ème
Pièces
T5
Surface
155.41 m²
Exposition
-
Ville
Lattes (34970)
Livraison
4ème trimestre 2028
Informations
01 81 80 39 10

Présentation du programme "KEROS"

KEROS, en co-promotion avec COGIM, s'élève comme une sculpture minérale, aux façades organiques et texturées, pensées comme façonnées par le temps. Cette création unique accueille 94 appartements du 2 au 5 pièces, tous traversants, baignés de lumière et prolongés de terrasses généreuses ou de toits-terrasses privatifs, avec vues imprenables sur la nature environnante.

Chaque logement se distingue par une entrée privative personnalisable, des matériaux nobles, une architecture en gradins laissant circuler l'air et la lumière, et une expérience de vie entre ciel et pierre. Les intérieurs, aux teintes minérales douces, sont pensés comme un écrin contemporain, élégant et sobre, avec un haut niveau de confort et de personnalisation.

Le coeur d'îlot paysager, signé par les paysagistes COLOCO, dévoile un jardin secret où la végétation méditerranéenne reprend ses droits : pins parasols, lavandes, oliviers et rochers sculptés y dessinent un théâtre naturel vivant au fil des saisons.

KEROS, c'est aussi un emplacement privilégié : à deux pas du tramway ligne 3, à 10 min de Montpellier centre et 15 min des plages. À proximité immédiate, écoles, commerces, associations, espaces verts et vie de quartier participent à une qualité de vie rare, entre nature et ville.

Autres logements T5 du programme "KEROS"

Disponibilité Prix Genre Pièces Surface Étage
Voir
Disponible
759 900€ Appt. T5 136.1m2 3ème
DO NOT CLICK