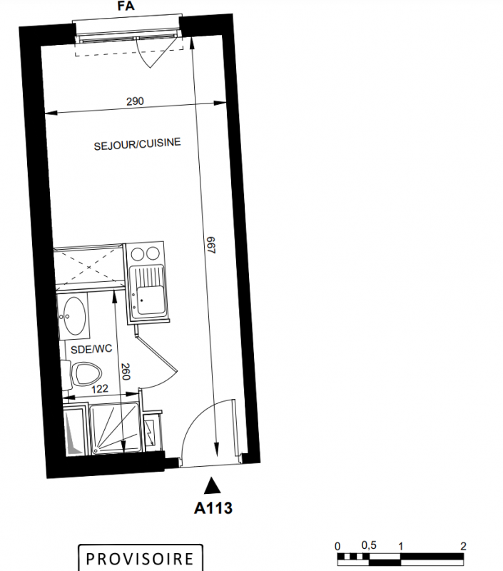
157 100€
Appt. au 1er
Studio
18.37 m²
Ouest
Montpellier (34000)
3ème trimestre 2027
01 81 80 39 10
Présentation du programme "Programme neuf Montpellier (34000)"
Investissez dans notre nouvelle résidence étudiante à Montpellier au cœur du quartier Hôpitaux faculté et bénéficiez d'une rentabilité jusqu'à 4,3%* par an ! Et pour booster votre rentabilité, nous vous offrons le mobilier, la cuisine, les frais de notaire et 6 mois de gestion locative ! Située dans un emplacement stratégique à proximité immédiate du centre-ville de Montpellier, notre nouvelle résidence offre un cadre de vie privilégié pour les étudiants. Avec un accès facile aux principaux établissements d’enseignement supérieur dont l’école d’architecture, l’université STAPS située à 5 minutes à pied et la faculté de médecine à seulement 5 minutes à vélo, garantissant une praticité optimale. L’environnement alentour est également propice aux activités sportives, grâce à la présence de nombreuses infrastructures publiques telles que des terrains de tennis, une piscine, des parcs aménagés, et un stade de baseball.Pour simplifier les déplacements, la résidence est idéalement desservie par les transports en commun, avec l’arrêt de bus « Plan des 4 Seigneurs » des lignes 23 et 26 situé à seulement 4 minutes à pied. De plus, la future ligne 5 du tramway, attendue pour le second trimestre 2025, facilitera encore davantage l’accès aux différents points stratégiques de la ville.Notre résidence est composée de 103 studios modernes et meublés offrant un espace bureau et nuit avec rangements, une cuisine équipée et une salle d’eau privative. Les étudiants apprécieront l’espace de coworking dédié au travail, favorisant la concentration et la productivité.Contactez-vite un de nos conseillers pour bénéficier de notre offre exclusive et découvrir tous nos logements neufs à Montpellier !
Autres logements Studio du programme "Programme neuf Montpellier (34000)"
| Disponibilité | Prix | No | Genre | Pièces | Surface | Étage | Disponibilité | Prix | ||
|---|---|---|---|---|---|---|---|---|---|---|
| Voir | Disponible | 172 400€ | A001 | Appt. | Studio | 22.89m2 | 0-RDC | Disponible | 172 400€ | Voir |
| Voir | Disponible | 157 100€ | A002 | Appt. | Studio | 18.32m2 | 0-RDC | Disponible | 157 100€ | Voir |
| Voir | Disponible | 157 100€ | A003 | Appt. | Studio | 18.32m2 | 0-RDC | Disponible | 157 100€ | Voir |
| Voir | Disponible | 152 000€ | A004 | Appt. | Studio | 17.95m2 | 0-RDC | Disponible | 152 000€ | Voir |
| Voir | Disponible | 162 200€ | A008 | Appt. | Studio | 19.58m2 | 0-RDC | Disponible | 162 200€ | Voir |
| Voir | Disponible | 166 200€ | A027 | Appt. | Studio | 20.29m2 | 0-RDC | Disponible | 166 200€ | Voir |
| Voir | Disponible | 147 800€ | A101 | Appt. | Studio | 17.17m2 | 1er | Disponible | 147 800€ | Voir |
| Voir | Disponible | 154 000€ | A102 | Appt. | Studio | 17.84m2 | 1er | Disponible | 154 000€ | Voir |
| Voir | Disponible | 154 000€ | A103 | Appt. | Studio | 17.83m2 | 1er | Disponible | 154 000€ | Voir |
| Voir | Disponible | 144 600€ | A105 | Appt. | Studio | 16.16m2 | 1er | Disponible | 144 600€ | Voir |
| Voir | Disponible | 159 100€ | A106 | Appt. | Studio | 18.4m2 | 1er | Disponible | 159 100€ | Voir |
| Voir | Disponible | 159 100€ | A107 | Appt. | Studio | 18.4m2 | 1er | Disponible | 159 100€ | Voir |
| Voir | Disponible | 159 100€ | A108 | Appt. | Studio | 18.4m2 | 1er | Disponible | 159 100€ | Voir |
| Voir | Disponible | 159 100€ | A109 | Appt. | Studio | 18.4m2 | 1er | Disponible | 159 100€ | Voir |
| Voir | Disponible | 159 100€ | A110 | Appt. | Studio | 18.4m2 | 1er | Disponible | 159 100€ | Voir |
| Voir | Disponible | 159 100€ | A111 | Appt. | Studio | 18.4m2 | 1er | Disponible | 159 100€ | Voir |
| Voir | Disponible | 162 200€ | A116 | Appt. | Studio | 19.66m2 | 1er | Disponible | 162 200€ | Voir |
| Voir | Disponible | 167 300€ | A138 | Appt. | Studio | 20.29m2 | 1er | Disponible | 167 300€ | Voir |
| Voir | Disponible | 148 400€ | A201 | Appt. | Studio | 17.17m2 | 2ème | Disponible | 148 400€ | Voir |
| Voir | Disponible | 153 800€ | A202 | Appt. | Studio | 17.84m2 | 2ème | Disponible | 153 800€ | Voir |
| Voir | Disponible | 153 800€ | A203 | Appt. | Studio | 17.83m2 | 2ème | Disponible | 153 800€ | Voir |
| Voir | Disponible | 146 900€ | A205 | Appt. | Studio | 16.16m2 | 2ème | Disponible | 146 900€ | Voir |
| Voir | Disponible | 161 800€ | A206 | Appt. | Studio | 18.4m2 | 2ème | Disponible | 161 800€ | Voir |
| Voir | Disponible | 161 800€ | A207 | Appt. | Studio | 18.4m2 | 2ème | Disponible | 161 800€ | Voir |
| Voir | Disponible | 165 000€ | A208 | Appt. | Studio | 18.4m2 | 2ème | Disponible | 165 000€ | Voir |
| Voir | Disponible | 161 800€ | A209 | Appt. | Studio | 18.4m2 | 2ème | Disponible | 161 800€ | Voir |
| Voir | Disponible | 161 800€ | A210 | Appt. | Studio | 18.4m2 | 2ème | Disponible | 161 800€ | Voir |
| Voir | Disponible | 161 800€ | A211 | Appt. | Studio | 18.4m2 | 2ème | Disponible | 161 800€ | Voir |
| Voir | Disponible | 159 900€ | A213 | Appt. | Studio | 18.37m2 | 2ème | Disponible | 159 900€ | Voir |
| Voir | Disponible | 164 200€ | A216 | Appt. | Studio | 19.66m2 | 2ème | Disponible | 164 200€ | Voir |
| Voir | Disponible | 168 200€ | A238 | Appt. | Studio | 20.29m2 | 2ème | Disponible | 168 200€ | Voir |