256 740€
465 520€
- €
465 520€
- €
Type
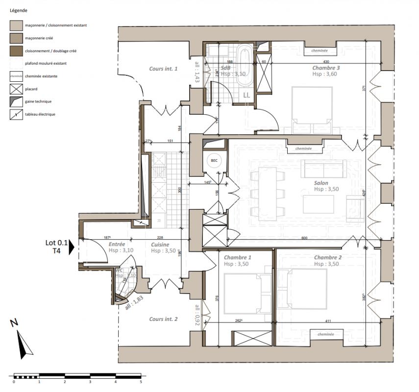
Appt. au 0-RDC
Appt. au 0-RDC
Pièces
T4
T4
Surface
96.83 m²
96.83 m²
Exposition
Sud
Sud
Ville
Montpellier (34000)
Montpellier (34000)
Livraison
4ème trimestre 2027
4ème trimestre 2027
Informations
01 81 80 39 10
01 81 80 39 10
Présentation du programme "VILLA ANDRE"