138 370€
339 220€
- €
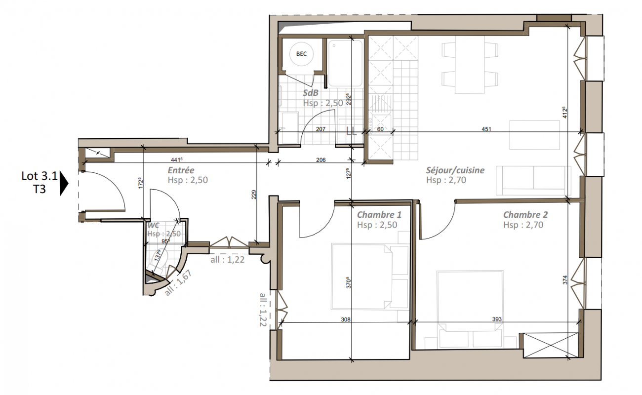
Type
Appt. au 3ème
Pièces
T3
Surface
62.48 m²
Exposition
Sud
Ville
Montpellier (34000)
Livraison
4ème trimestre 2027
Informations
01 81 80 39 10

Présentation du programme "VILLA ANDRE"

Autres logements T3 du programme "VILLA ANDRE"

Disponibilité Prix Genre Pièces Surface Étage
Voir
Optionné
484 290€ Appt. T3 68.86m2 2ème
DO NOT CLICK